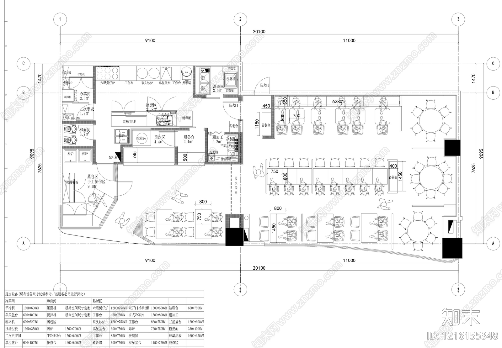
现代中餐厅施工图下载【ID:1216155348】

现代中餐厅CAD下载

ID: 1216155348
复制
上传作者
ZMVIP用户ZMVIP用户

上传时间2026-04-10

文件大小0.83M

设计风格:--

CAD版本:CAD2018

包含文件:CAD

授权独家

立即下载
收藏
分享
举报
相关推荐
综合
餐饮空间
中餐厅
西餐厅
快餐店
自助餐厅
茶餐厅
其他餐饮空间
食堂
奶茶店
咖啡厅