CAD频道
CAD图库
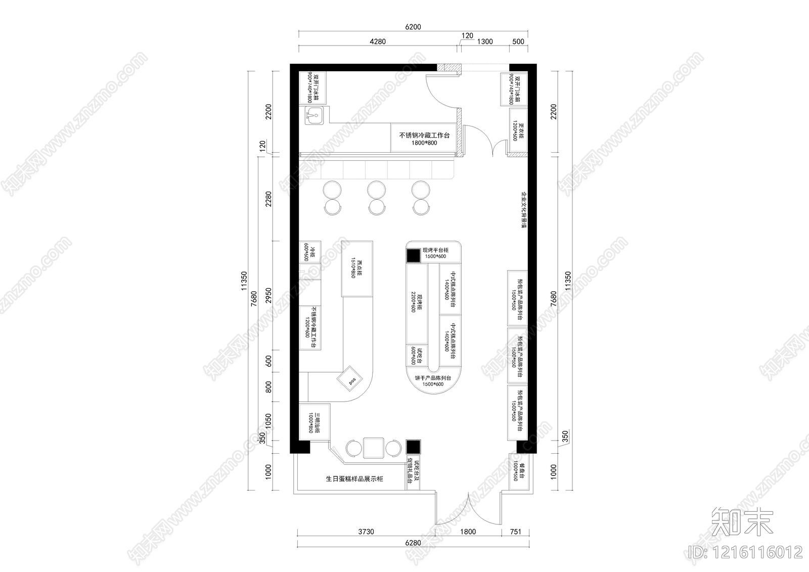
现代面包店 小阳人烘焙店施 施工图
1/
4
Previous
Next
现代面包店CAD下载
ID: 1216116012
复制
上传作者
大白搬砖来了
上传时间
2026-04-09
文件大小
3.6M
设计风格:
--
CAD版本:
CAD2004
包含文件:
CAD
授权
独家
立即下载
收藏
分享
举报
相关推荐
综合
餐饮空间
面包店
中餐厅
西餐厅
快餐店
自助餐厅
茶餐厅
其他餐饮空间
食堂
奶茶店