CAD频道
CAD图库
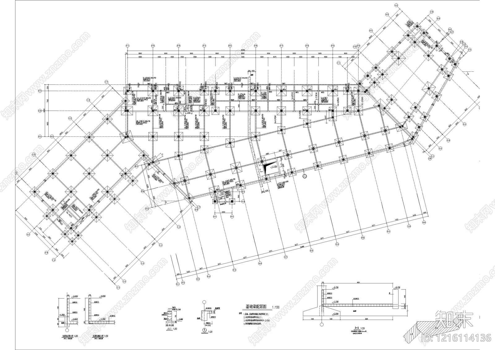
混凝土结构 旅游中心结构施 施工图
1/
3
Previous
Next
混凝土结构CAD下载
ID: 1216114136
复制
上传作者
小趴菜园
上传时间
2026-04-09
文件大小
2.92M
设计风格:
--
CAD版本:
CAD2004
包含文件:
CAD
授权
独家
立即下载
收藏
分享
举报
相关推荐
综合
结构设计
混凝土结构
钢结构
幕墙结构
砌体结构
木结构
结构节点图
其他结构图纸