CAD频道
CAD图库
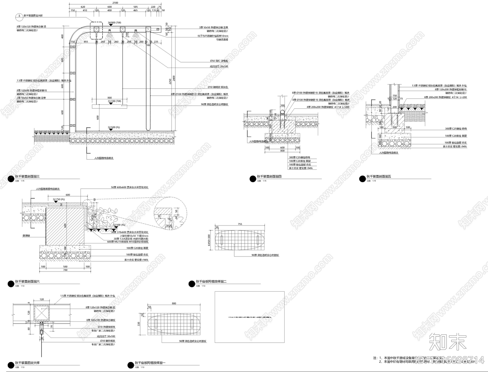
木结构 秋千休憩场地 施工图
1/
3
Previous
Next
木结构CAD下载
ID: 1216098714
复制
上传作者
ZMVIP用户
上传时间
2026-04-09
文件大小
1.12M
设计风格:
--
CAD版本:
CAD2018
包含文件:
CAD
授权
独家
立即下载
收藏
分享
举报
相关推荐
综合
结构设计
木结构
混凝土结构
钢结构
幕墙结构
砌体结构
结构节点图
其他结构图纸