1/3


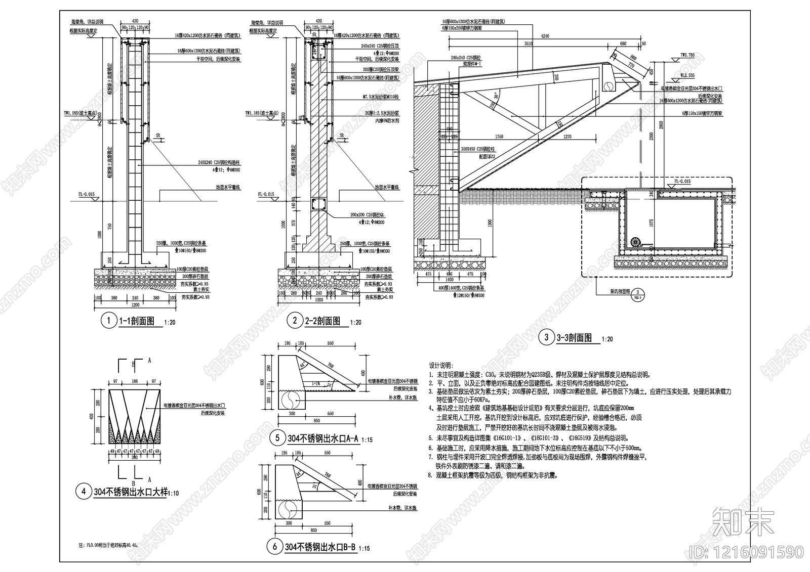
水景节点详图CAD下载
ID: 1216091590
复制
上传作者
景观施工图互粉
景观施工图互粉上传时间2026-04-09
文件大小2.48M
设计风格:--
CAD版本:CAD2012
包含文件:CAD
授权独家
立即下载
收藏
分享
举报
相关推荐
综合
水景
水景节点详图
镜面水景
跌水景观
喷泉水景
雾森景观
亲水平台
互动水景
水池结构图
水景设备图


景观施工图互粉上传时间2026-04-09
文件大小2.48M
设计风格:--
CAD版本:CAD2012
包含文件:CAD
授权独家