CAD频道
CAD图库
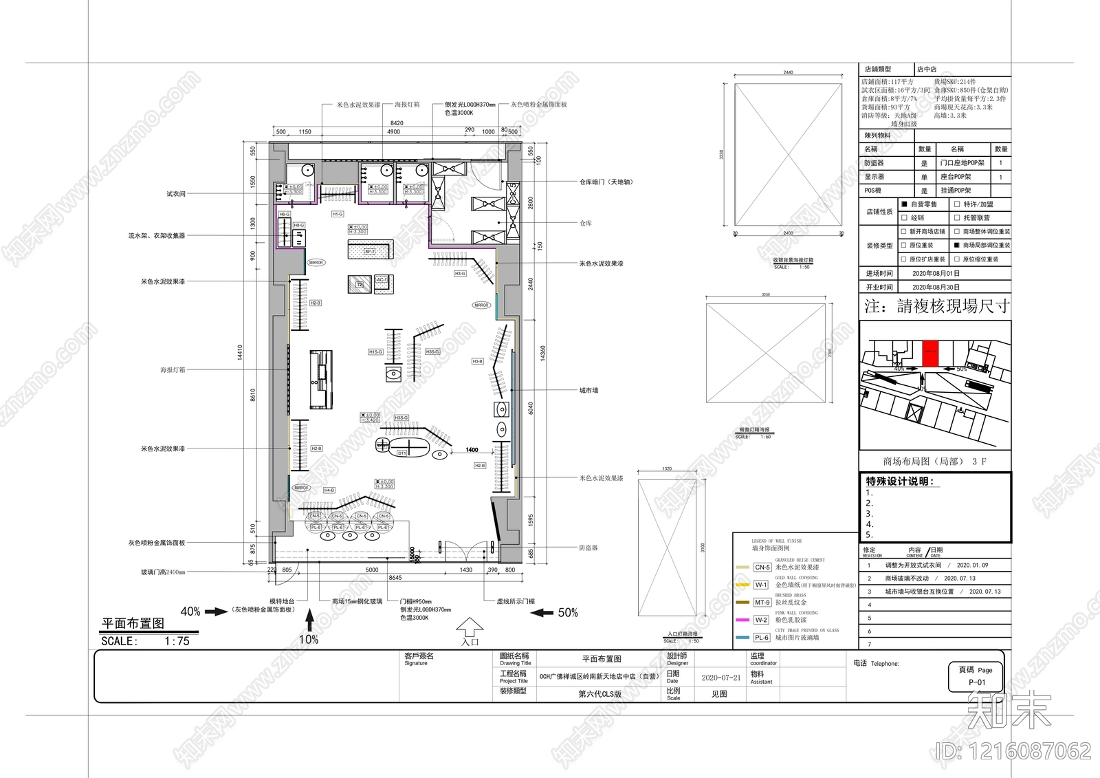
现代服装店 服装专卖店 设计师买手店 优衣库服装店 男装女装专卖店 UR...
1/
10
Previous
Next
现代服装店CAD下载
ID: 1216087062
复制
上传作者
Charm
上传时间
2026-04-09
文件大小
6.07M
设计风格:
--
CAD版本:
CAD2010
包含文件:
CAD
授权
独家
立即下载
收藏
分享
举报
相关推荐
综合
商业空间
服装店
售楼处
商场
其他商业空间
超市
书店
美甲店
珠宝店
4s店