1/6


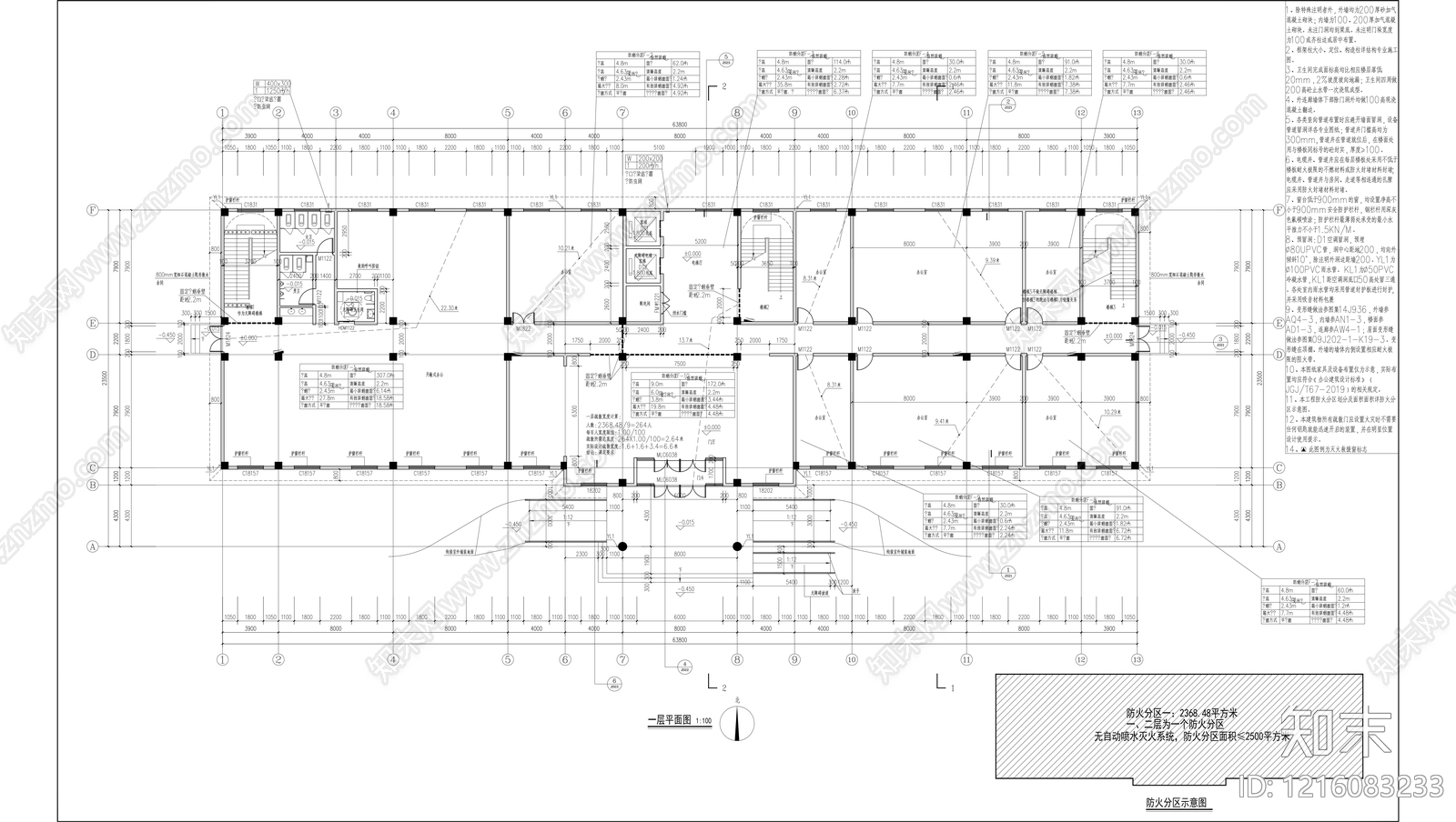
现代办公楼建筑CAD下载
ID: 1216083233
复制
上传作者
2287741011829
2287741011829上传时间2026-04-09
文件大小4.71M
设计风格:--
CAD版本:天正建筑 2014
包含文件:CAD
授权独家
立即下载
收藏
分享
举报
相关推荐
综合
办公工业建筑
办公楼建筑
产业园建筑
厂房
其他办公建筑
政府办公楼
企业总部大厦
科研办公楼
金融办公建筑
研发中心


2287741011829上传时间2026-04-09
文件大小4.71M
设计风格:--
CAD版本:天正建筑 2014
包含文件:CAD
授权独家