1/8


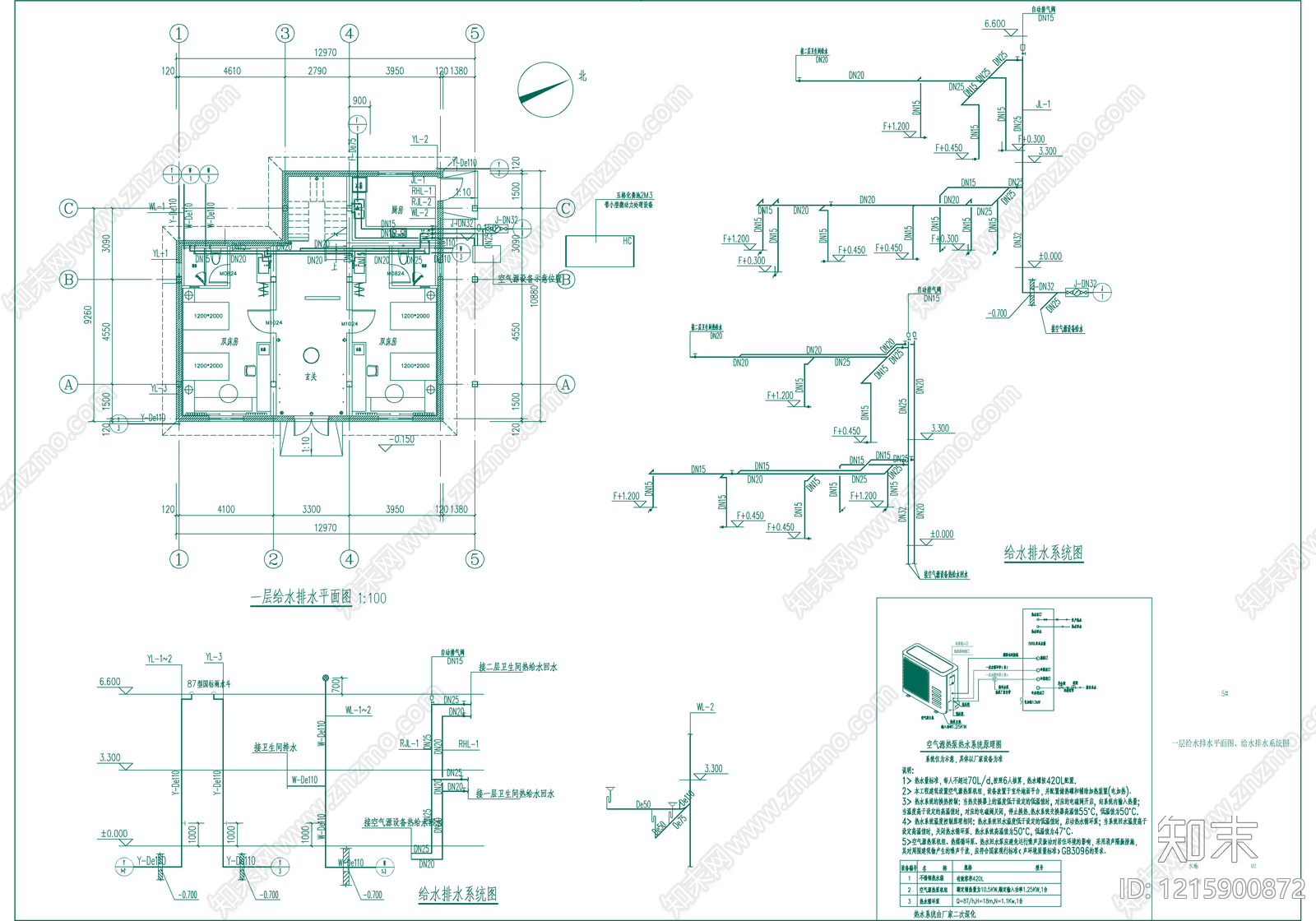
消防给水系统CAD下载
ID: 1215900872
复制
上传作者
巴迪咔哇
巴迪咔哇上传时间2026-04-08
文件大小1.71M
设计风格:--
CAD版本:CAD2024
包含文件:CAD
授权独家
立即下载
收藏
分享
举报
相关推荐
综合
建筑给排水
消防给水系统
给水系统
排水系统
热水系统
中水系统
雨水系统
污水提升系统
给排水机房
水箱系统


巴迪咔哇上传时间2026-04-08
文件大小1.71M
设计风格:--
CAD版本:CAD2024
包含文件:CAD
授权独家