CAD频道
CAD图库
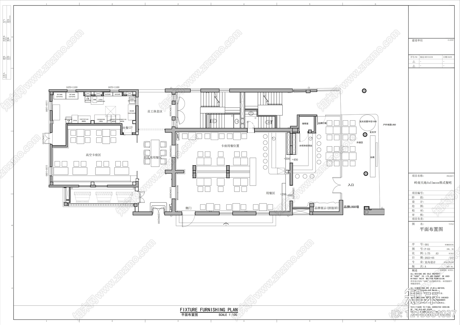
现代西餐厅 日式餐吧 韩式餐吧 韩式餐厅 花园餐厅 户外餐厅 施工图
1/
8
Previous
Next
现代西餐厅CAD下载
ID: 1215864037
复制
上传作者
Charm
上传时间
2026-04-08
文件大小
2.6M
设计风格:
--
CAD版本:
CAD2010
包含文件:
CAD
授权
独家
立即下载
收藏
分享
举报
相关推荐
综合
餐饮空间
西餐厅
中餐厅
快餐店
自助餐厅
茶餐厅
其他餐饮空间
食堂
奶茶店
咖啡厅