CAD频道
CAD图库
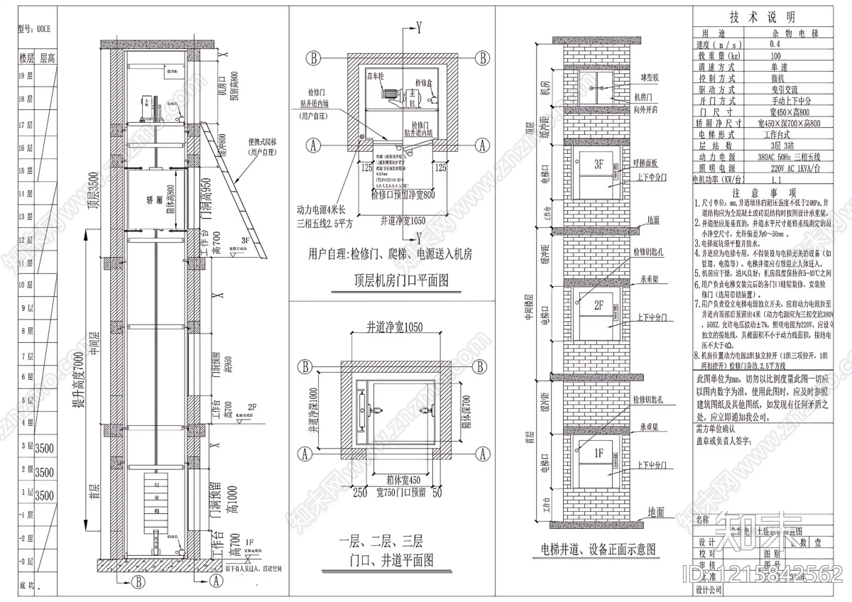
现代器材设备详图 传菜梯设备节点 电梯井道设备 施工图
现代器材设备详图CAD下载
ID: 1215842562
复制
上传作者
设计大咖
上传时间
2026-04-07
文件大小
2.7M
设计风格:
--
CAD版本:
CAD2004
包含文件:
CAD
授权
独家
立即下载
收藏
分享
举报
相关推荐
综合
节点详图
器材设备详图
吊顶节点
墙面节点
地面节点
门节点
其他节点详图
建筑工程节点
景观小品
楼梯节点