CAD频道
CAD图库
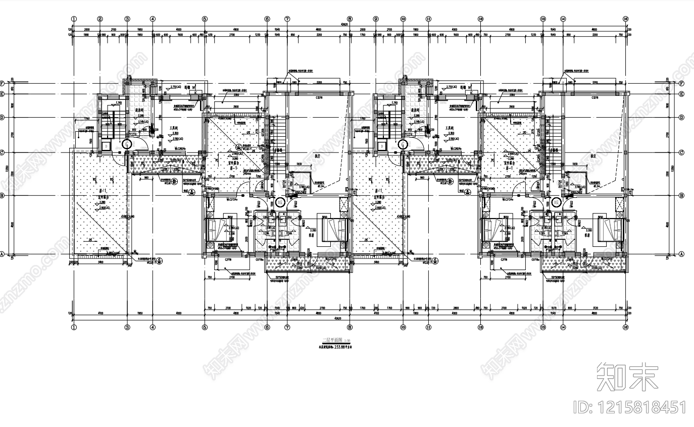
新中式民宿建筑 民宿 酒店 施工图
1/
3
Previous
Next
新中式民宿建筑CAD下载
ID: 1215818451
复制
上传作者
2615200461252
上传时间
2026-04-07
文件大小
6.23M
设计风格:
--
CAD版本:
天正建筑 2020
包含文件:
CAD
授权
独家
立即下载
收藏
分享
举报
相关推荐
综合
酒店民宿建筑
民宿建筑
酒店建筑