CAD频道
CAD图库
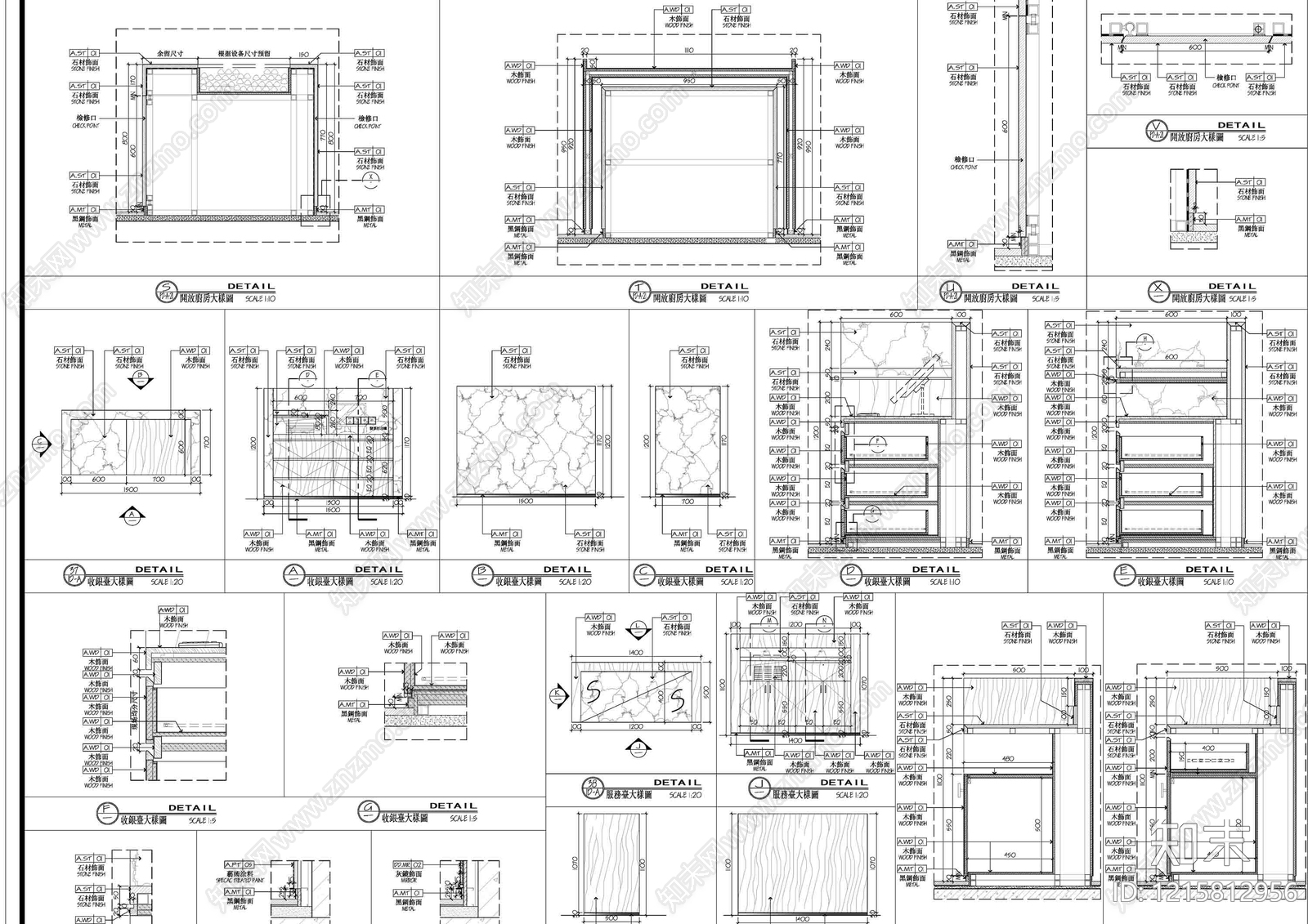
柜体节点 收银柜剖面节点图 施工图
1/
2
Previous
Next
柜体节点CAD下载
ID: 1215812956
复制
上传作者
xin图
上传时间
2026-04-07
文件大小
2.42M
设计风格:
--
CAD版本:
CAD2004
包含文件:
CAD
授权
独家
立即下载
收藏
分享
举报
相关推荐
综合
家具节点详图
柜体节点
吧台节点
壁炉节点
卡座节点
前台节点
综合家具节点