CAD频道
CAD图库
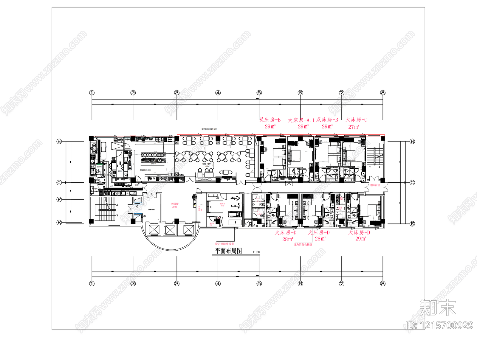
现代其他餐饮空间 自助餐厅 酒店自助餐 宾馆自助餐 施工图
现代其他餐饮空间CAD下载
ID: 1215700929
复制
上传作者
嫩牛五方【互】
上传时间
2026-04-03
文件大小
0.86M
设计风格:
--
CAD版本:
CAD2010
包含文件:
CAD
授权
独家
立即下载
收藏
分享
举报
相关推荐
综合
餐饮空间
其他餐饮空间
中餐厅
西餐厅
快餐店
自助餐厅
茶餐厅
食堂
奶茶店
咖啡厅