CAD频道
CAD图库
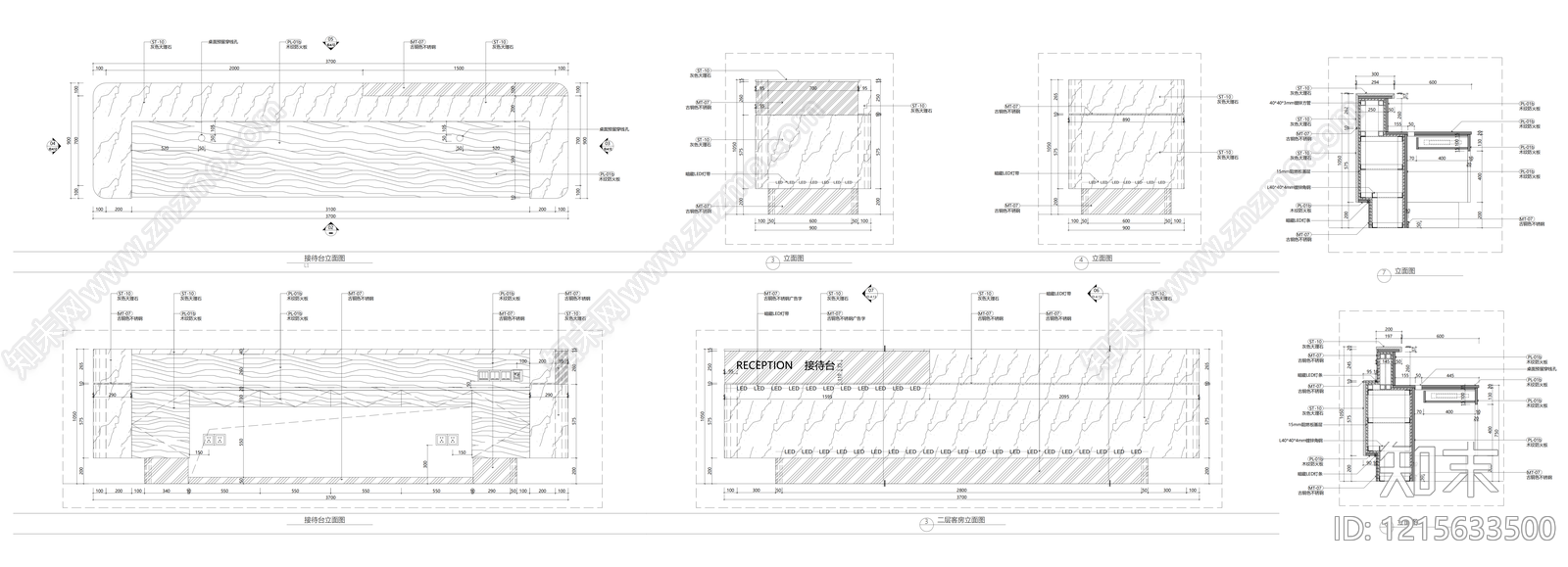
前台节点 接待台节点详图 施工图
1/
4
Previous
Next
前台节点CAD下载
ID: 1215633500
复制
上传作者
斐修斯~
上传时间
2026-04-02
文件大小
2.51M
设计风格:
--
CAD版本:
CAD2022
包含文件:
CAD
授权
独家
立即下载
收藏
分享
举报
相关推荐
综合
家具节点详图
前台节点
吧台节点
壁炉节点
柜体节点
卡座节点
综合家具节点