CAD频道
CAD图库
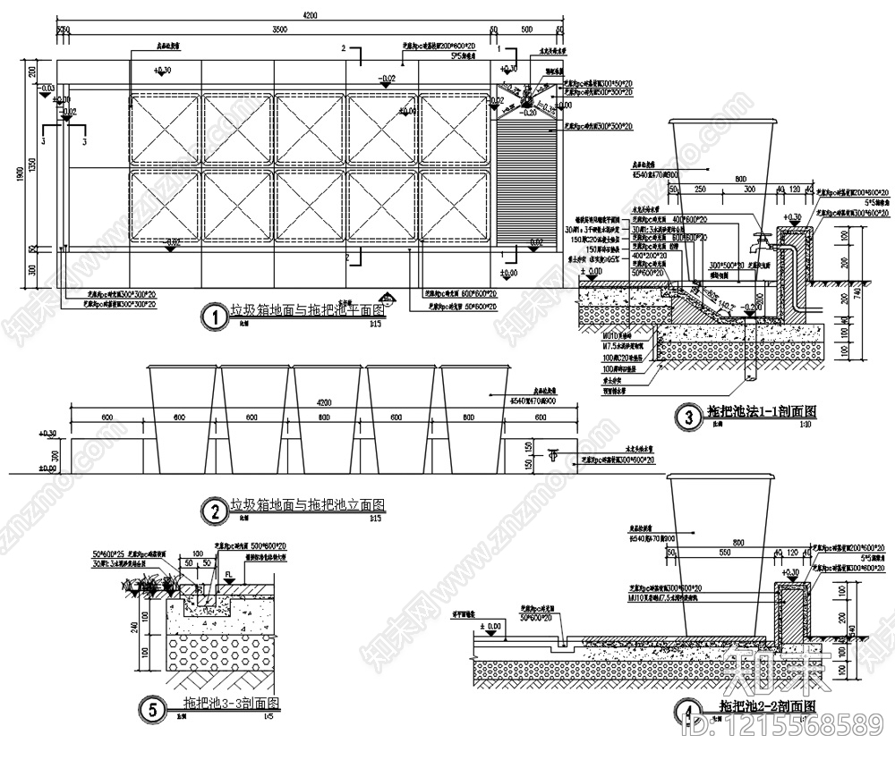
现代垃圾桶 垃圾分类收集点 垃圾分类拖把池 垃圾分类节点场地 施工图
现代垃圾桶CAD下载
ID: 1215568589
复制
上传作者
樊笼的鸟
上传时间
2026-04-01
文件大小
0.2M
设计风格:
--
CAD版本:
CAD2007
包含文件:
CAD
授权
独家
立即下载
收藏
分享
举报
相关推荐
综合
景观小品
垃圾桶
亭子
廊架
景墙
综合景观小品
雨棚
围墙
挡土墙
入口