CAD频道
CAD图库
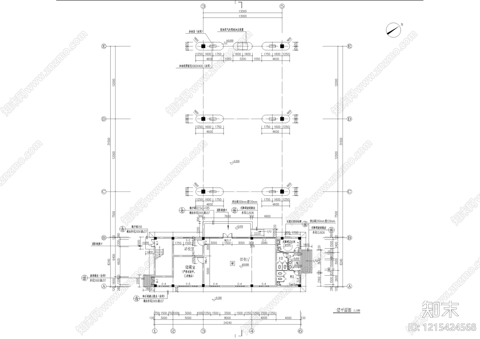
现代加油站 加油站营业厅建筑 施工图
1/
4
Previous
Next
现代加油站CAD下载
ID: 1215424568
复制
上传作者
xin图
上传时间
2026-03-30
文件大小
1.85M
设计风格:
--
CAD版本:
CAD2004
包含文件:
CAD
授权
独家
立即下载
收藏
分享
举报
相关推荐
综合
交通建筑
加油站
机场建筑
客运站
服务区
驿站
其他交通建筑
车站