CAD频道
CAD图库
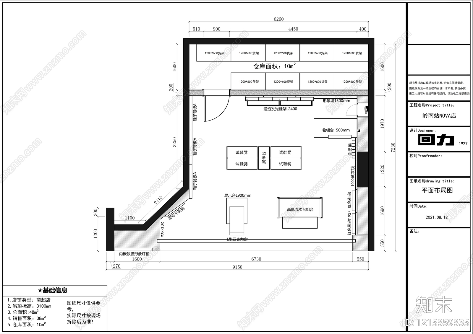
现代鞋店 回力运动帆布鞋 匡威帆布鞋 万斯帆布鞋 阿迪达斯运动鞋 运动鞋...
1/
10
Previous
Next
现代鞋店CAD下载
ID: 1215359335
复制
上传作者
LastDance
上传时间
2026-03-28
文件大小
7.1M
设计风格:
--
CAD版本:
CAD2010
包含文件:
CAD
授权
独家
立即下载
收藏
分享
举报
相关推荐
综合
商业空间
鞋店
售楼处
商场
其他商业空间
超市
服装店
书店
美甲店
珠宝店