1/9


现代其他建筑CAD下载
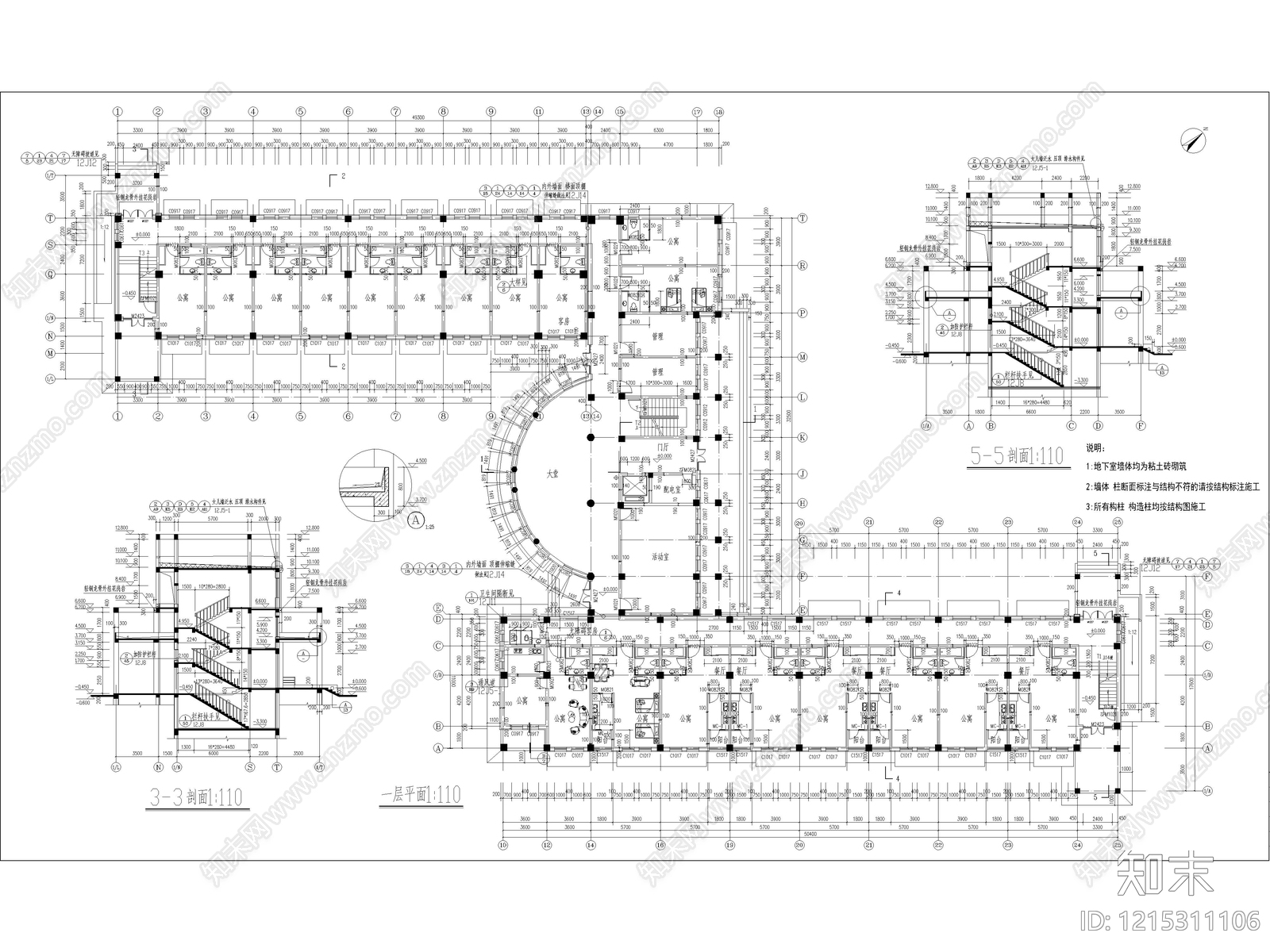
ID: 1215311106
复制
上传作者
22701610211727
22701610211727上传时间2026-03-28
文件大小11.48M
设计风格:--
CAD版本:CAD2018
包含文件:CAD
授权独家
立即下载
收藏
分享
举报
相关推荐
综合
建筑
其他建筑
居住建筑
办公工业建筑
商业建筑
酒店民宿建筑
交通建筑
规划设计
古建
教育建筑


22701610211727上传时间2026-03-28
文件大小11.48M
设计风格:--
CAD版本:CAD2018
包含文件:CAD
授权独家