CAD频道
CAD图库
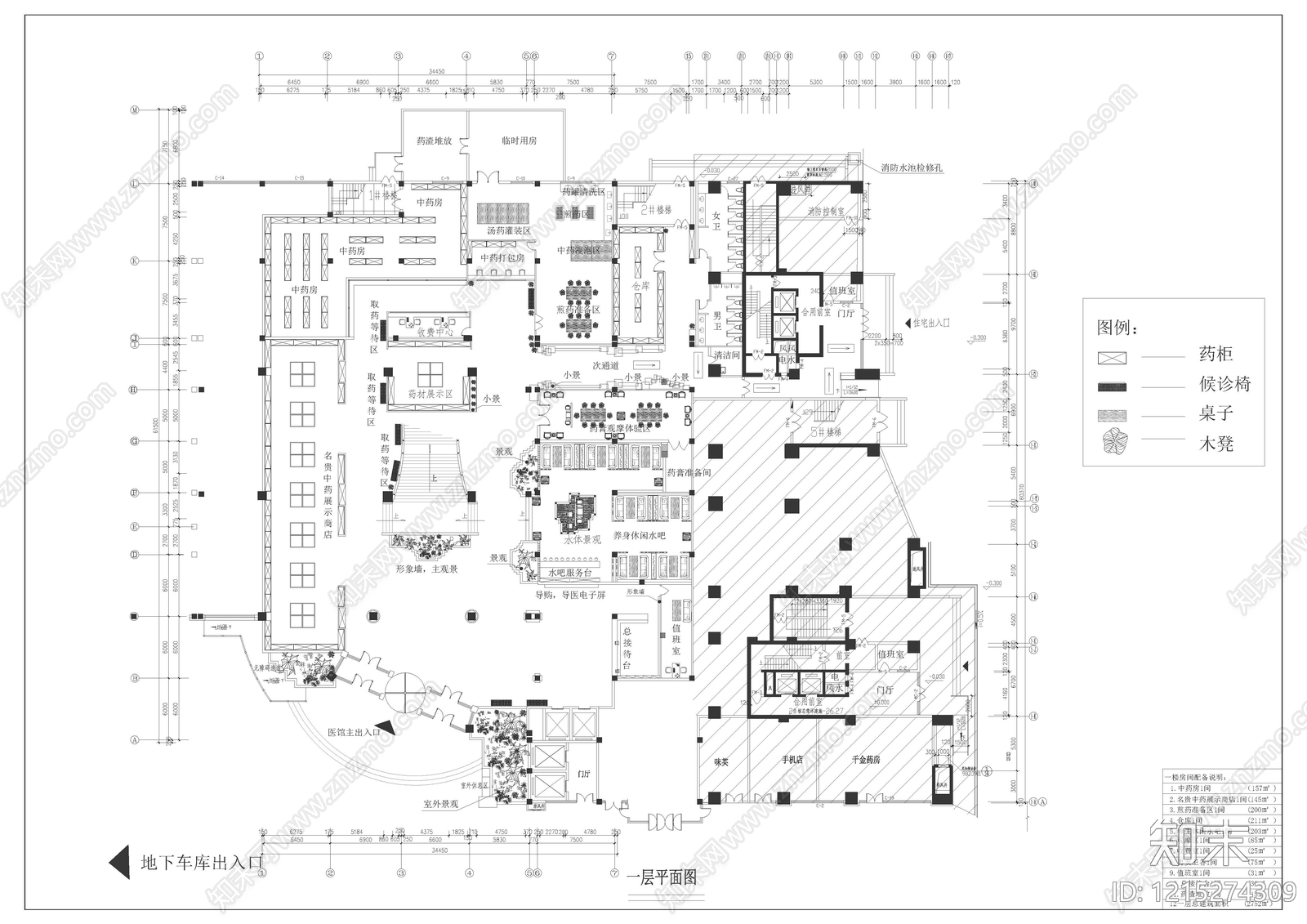
现代新中式中医馆 医院 中医药馆 中医馆 中医 治疗室 施工图
1/
2
Previous
Next
现代新中式中医馆CAD下载
ID: 1215274309
复制
上传作者
挖个水井养白鲨
上传时间
2026-03-27
文件大小
2.81M
设计风格:
--
CAD版本:
CAD2004
包含文件:
CAD
授权
独家
立即下载
收藏
分享
举报
相关推荐
综合
医疗空间
中医馆
医院
养老院
宠物医院
月子中心
其他医疗空间