
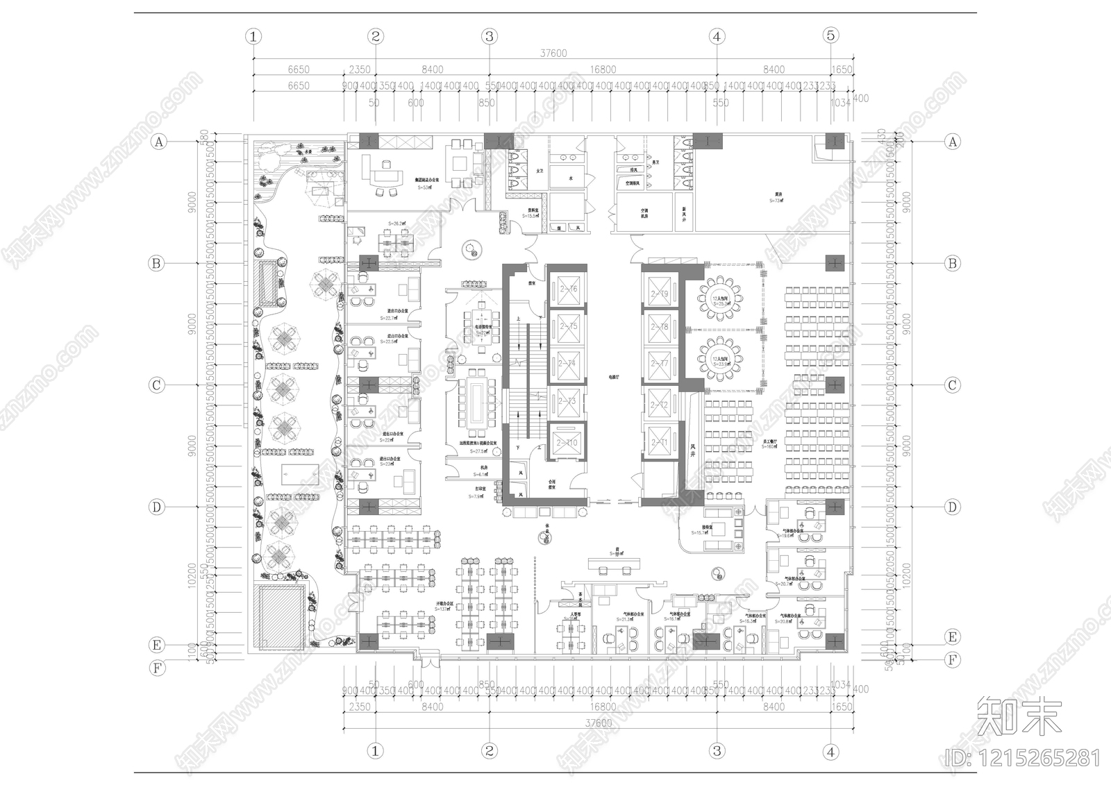
现代简约独立办公室CAD下载
ID: 1215265281
复制
上传作者
挖个水井养白鲨
挖个水井养白鲨上传时间2026-03-27
文件大小1.39M
设计风格:--
CAD版本:CAD2004
包含文件:CAD
授权独家
立即下载
收藏
分享
举报
相关推荐
综合
办公空间
独立办公室
开放办公室
会议室
休息室
整体办公空间
直播间
茶水间
接待室
工作室

挖个水井养白鲨上传时间2026-03-27
文件大小1.39M
设计风格:--
CAD版本:CAD2004
包含文件:CAD
授权独家