CAD频道
CAD图库
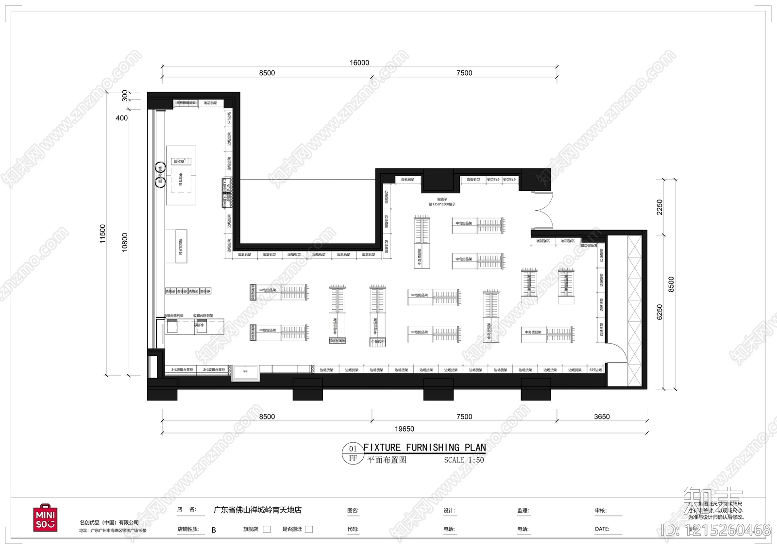
现代文创店 名创优品 潮玩专卖店 盲盒专卖店 IP运营平台 施工图
现代文创店CAD下载
ID: 1215260468
复制
上传作者
LastDance
上传时间
2026-03-27
文件大小
1.12M
设计风格:
--
CAD版本:
CAD2010
包含文件:
CAD
授权
独家
立即下载
收藏
分享
举报
相关推荐
综合
商业空间
文创店
售楼处
商场
其他商业空间
超市
服装店
书店
美甲店
珠宝店