CAD频道
CAD图库
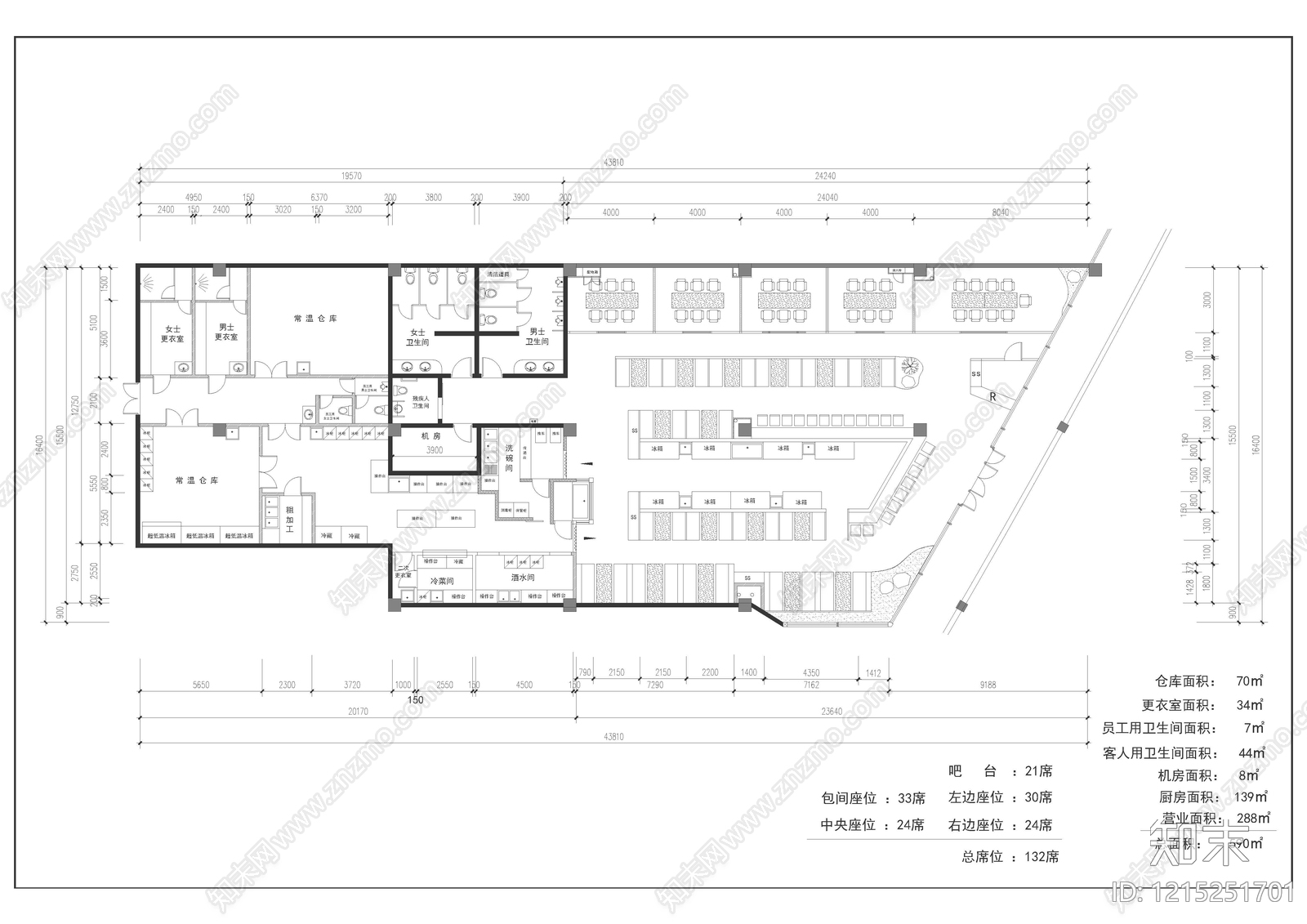
日式现代食堂 员工食堂 员工餐厅 日料餐厅 日料食堂 餐厅店铺 施工图
日式现代食堂CAD下载
ID: 1215251701
复制
上传作者
挖个水井养白鲨
上传时间
2026-03-27
文件大小
0.36M
设计风格:
--
CAD版本:
CAD2004
包含文件:
CAD
授权
独家
立即下载
收藏
分享
举报
相关推荐
综合
餐饮空间
食堂
中餐厅
西餐厅
快餐店
自助餐厅
茶餐厅
其他餐饮空间
奶茶店
咖啡厅