CAD频道
CAD图库
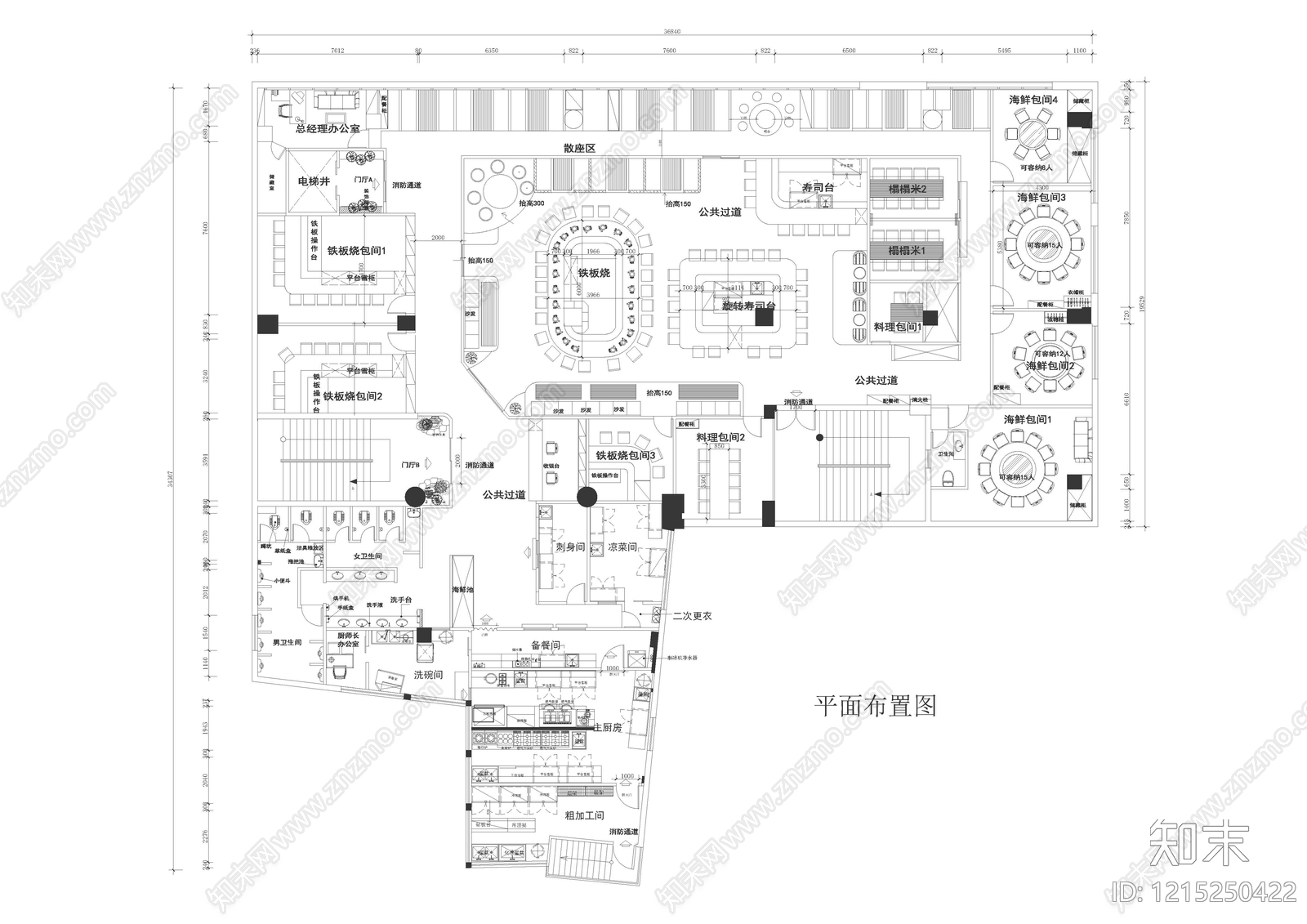
日式其他餐饮空间 日料店 料理店 料理店厨房 商业店铺 食堂后厨 施工图
日式其他餐饮空间CAD下载
ID: 1215250422
复制
上传作者
挖个水井养白鲨
上传时间
2026-03-27
文件大小
4.79M
设计风格:
--
CAD版本:
CAD2004
包含文件:
CAD
授权
独家
立即下载
收藏
分享
举报
相关推荐
综合
餐饮空间
其他餐饮空间
中餐厅
西餐厅
快餐店
自助餐厅
茶餐厅
食堂
奶茶店
咖啡厅