CAD频道
CAD图库
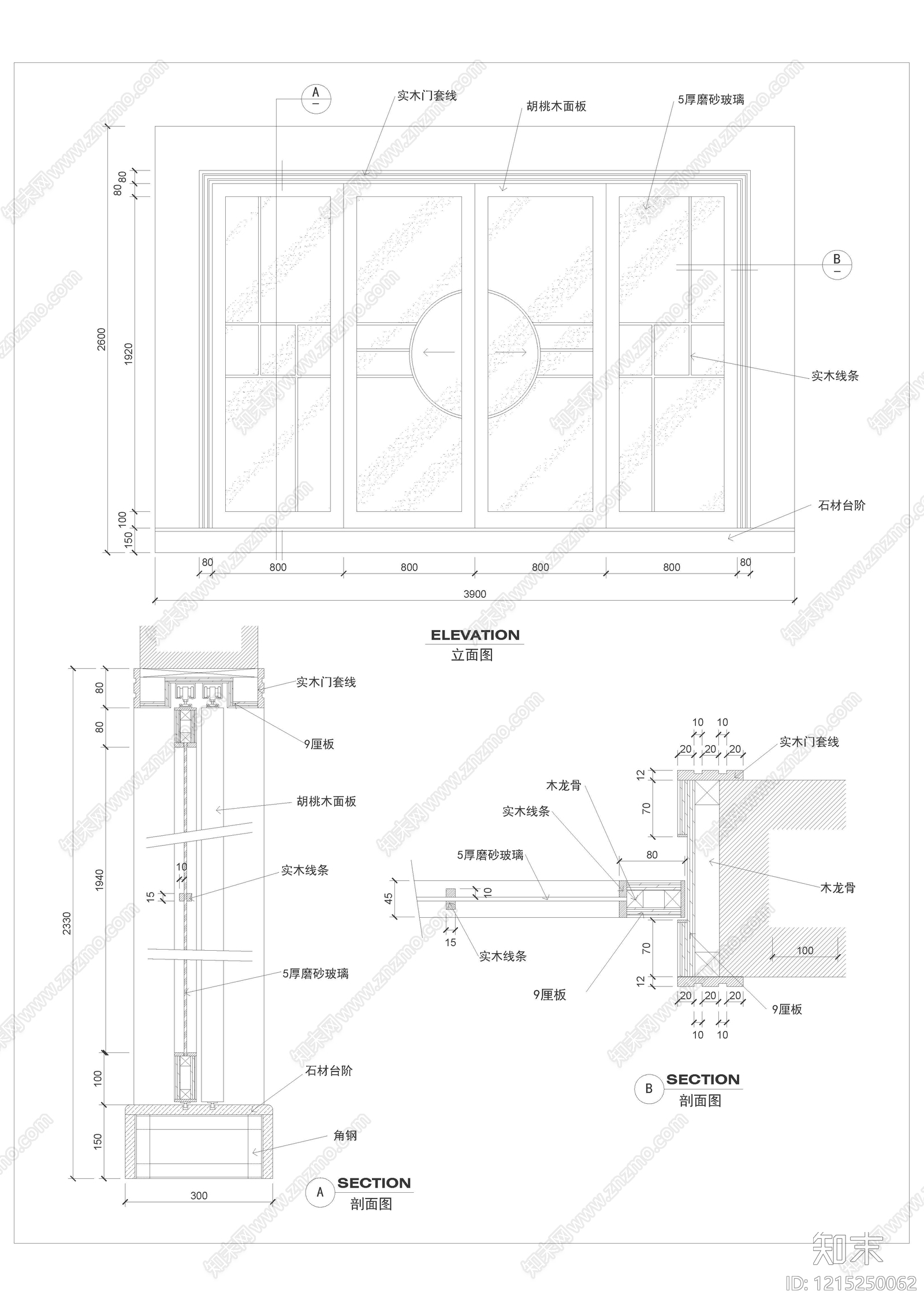
推拉门节点 推拉门节点 推拉门大样 推拉门剖视图 节点 大样 施工图
推拉门节点CAD下载
ID: 1215250062
复制
上传作者
挖个水井养白鲨
上传时间
2026-03-27
文件大小
0.22M
设计风格:
--
CAD版本:
CAD2004
包含文件:
CAD
授权
独家
立即下载
收藏
分享
举报
相关推荐
综合
门节点
推拉门节点
入户门
铁艺大门
月洞门
玻璃门节点
隐形门节点
综合门节点