CAD频道
CAD图库
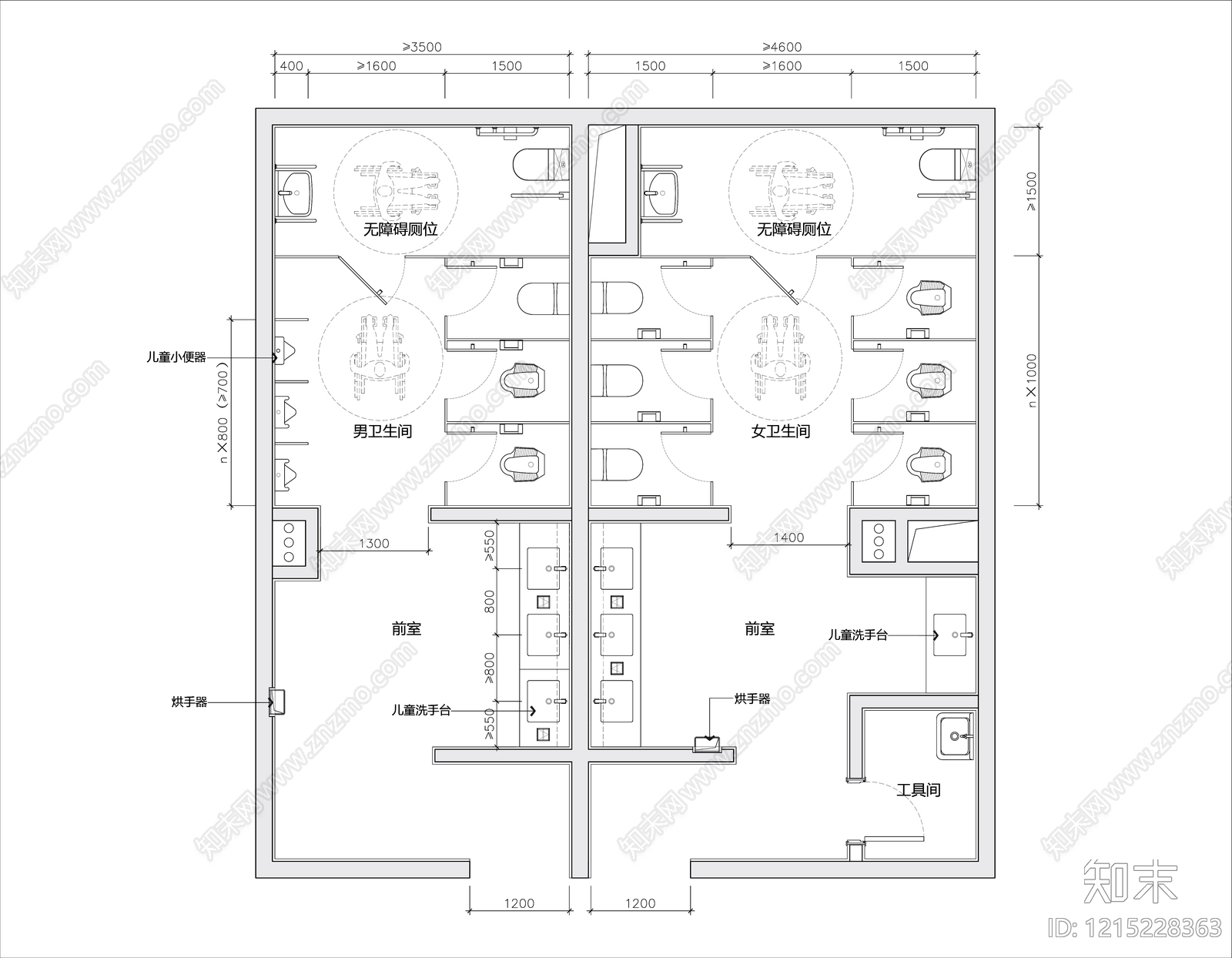
现代公共卫生间 公共卫生间 商场卫生间平面 无障碍卫生间 办公室卫生间 ...
现代公共卫生间CAD下载
ID: 1215228363
复制
上传作者
SPRING
上传时间
2026-03-26
文件大小
1.08M
设计风格:
--
CAD版本:
CAD2004
包含文件:
CAD
授权
独家
立即下载
收藏
分享
举报
相关推荐
综合
公共空间
公共卫生间
其他公共空间
宿舍
门头
服务中心
活动中心
会展
母婴室
档案室