CAD频道
CAD图库
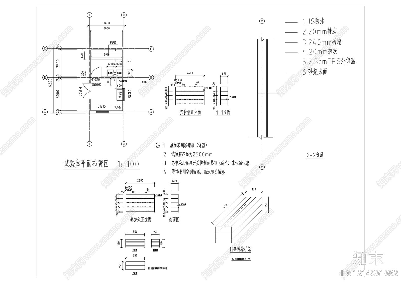
建筑平面布置图 试验室 工地试验室 养护室 工地养护室 试块养护室 施工...
建筑平面布置图CAD下载
ID: 1214961682
复制
上传作者
嫩牛五方【互】
上传时间
2026-03-26
文件大小
0.07M
设计风格:
--
CAD版本:
CAD2004
包含文件:
CAD
授权
独家
立即下载
收藏
分享
举报
相关推荐
综合
建筑平面图
建筑平面布置图
顶棚平面图
地面平面图
建筑改建