CAD频道
CAD图库
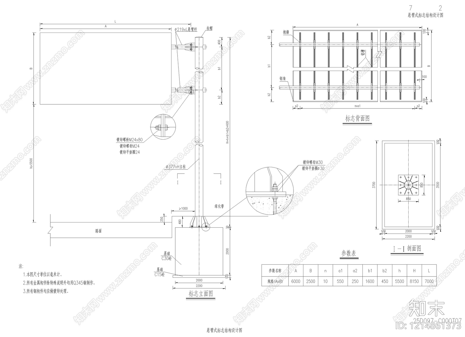
其他类型图纸 悬臂式标志结构图 道路标志施工做法 悬臂式标 施工图
1/
7
Previous
Next
其他类型图纸CAD下载
ID: 1214861373
复制
上传作者
三国一路
上传时间
2026-03-25
文件大小
2.3M
设计风格:
--
CAD版本:
CAD2018
包含文件:
CAD
授权
独家
立即下载
收藏
分享
举报
相关推荐
综合
其他图纸
其他类型图纸
三视图
吊顶图
水电图