CAD频道
CAD图库
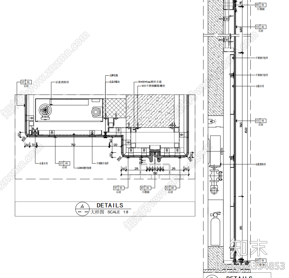
墙面节点 消火栓隐形门节点 石材面消火栓隐形 施工图
1/
2
Previous
Next
墙面节点CAD下载
ID: 1214394853
复制
上传作者
MUMU
上传时间
2026-03-24
文件大小
0.49M
设计风格:
--
CAD版本:
CAD2007
包含文件:
CAD
授权
独家
立即下载
收藏
分享
举报
相关推荐
综合
墙面节点
背景墙节点
轻钢龙骨隔墙
壁龛节点
隔音墙节点