CAD频道
CAD图库
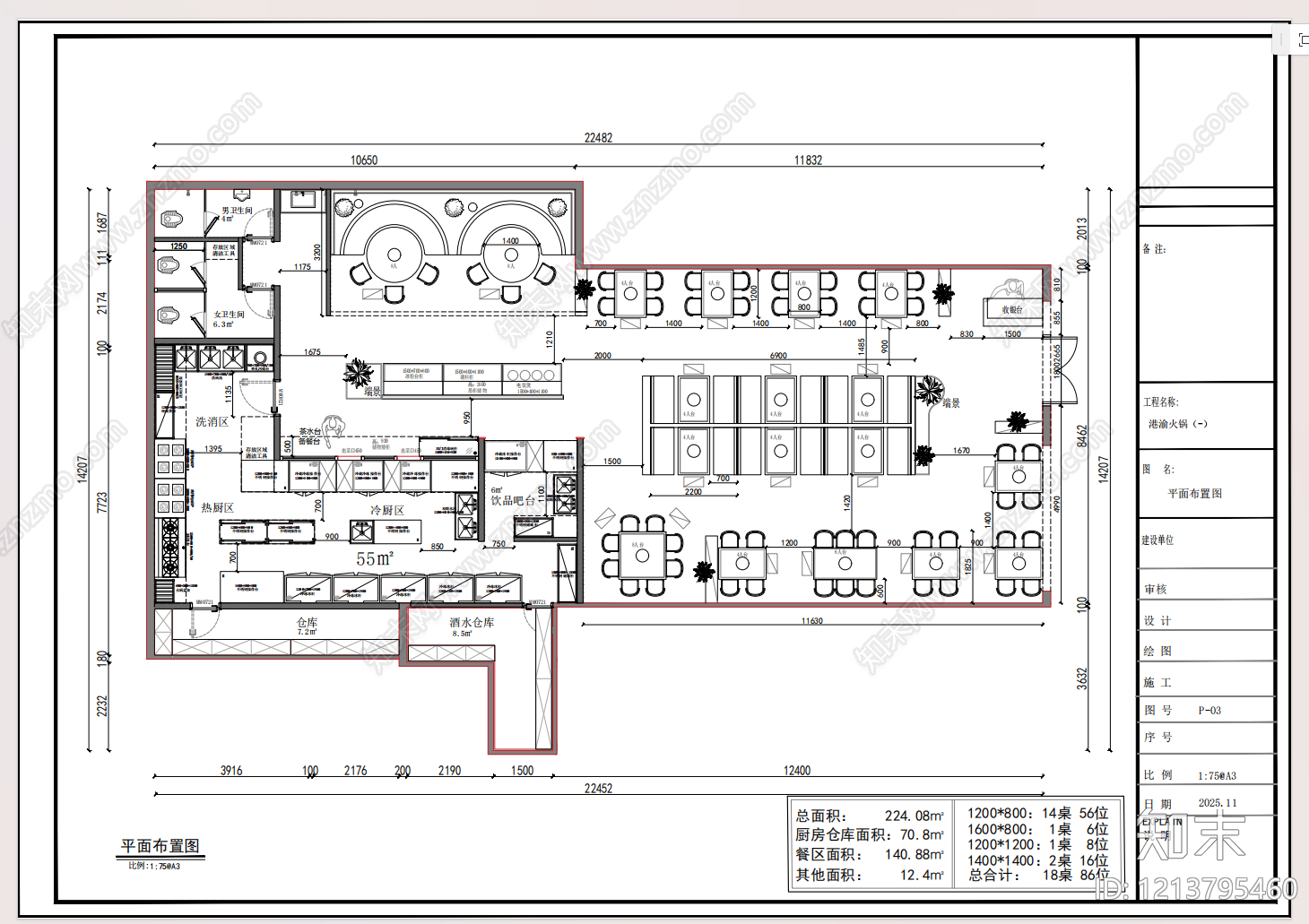
现代日式酒楼 海鲜餐厅 包厢 餐饮 店铺 平面 火锅 东南亚 施工图
现代日式酒楼CAD下载
ID: 1213795460
复制
上传作者
愣头青铁头娃
上传时间
2026-03-22
文件大小
26.1M
设计风格:
--
CAD版本:
CAD2007
包含文件:
CAD
授权
独家
立即下载
收藏
分享
举报
相关推荐
综合
餐饮空间
酒楼
中餐厅
西餐厅
快餐店
自助餐厅
茶餐厅
其他餐饮空间
食堂
奶茶店