CAD频道
CAD图库
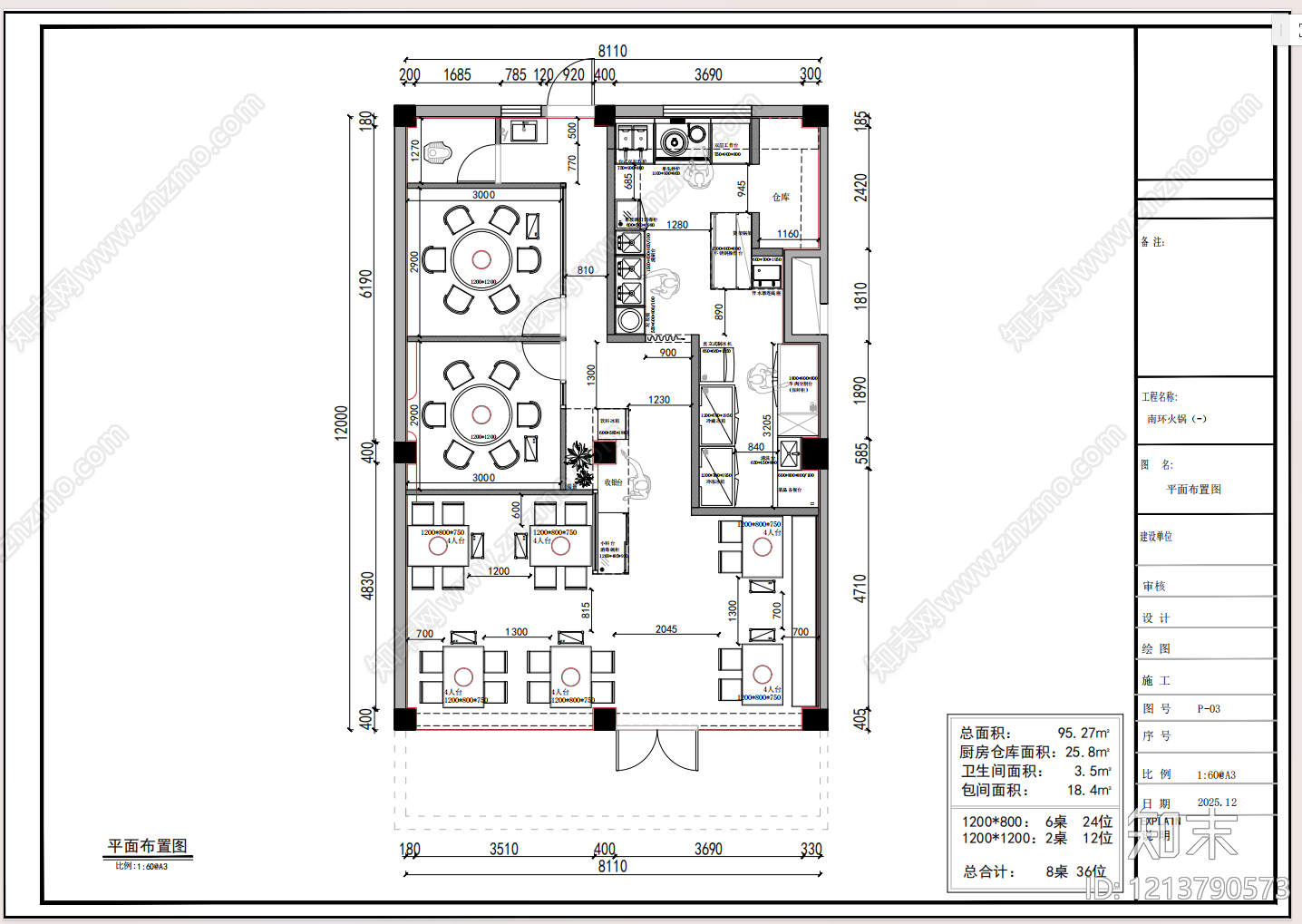
现代极简火锅店 露营火锅店 户外火锅店 包厢 施工图
现代极简火锅店CAD下载
ID: 1213790573
复制
上传作者
愣头青铁头娃
上传时间
2026-03-22
文件大小
1.86M
设计风格:
--
CAD版本:
CAD2007
包含文件:
CAD
授权
独家
立即下载
收藏
分享
举报
相关推荐
综合
餐饮空间
火锅店
中餐厅
西餐厅
快餐店
自助餐厅
茶餐厅
其他餐饮空间
食堂
奶茶店