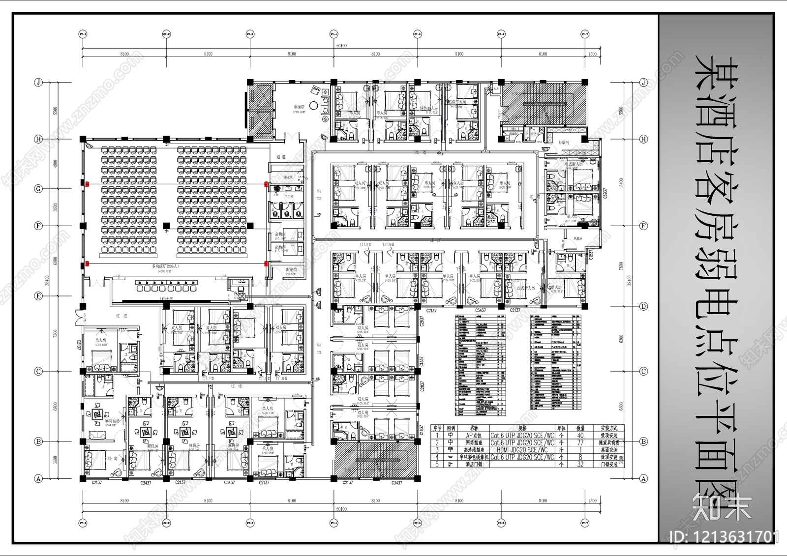
电气图施工图下载【ID:1213631701】

电气图CAD下载

ID: 1213631701
复制
上传作者
(盗模必追)节点图合集(盗模必追)节点图合集

上传时间2026-03-19

文件大小3.21M

设计风格:--

CAD版本:CAD2007

包含文件:CAD

授权独家

立即下载
收藏
分享
举报
相关推荐
综合
电气图
景观电气