CAD频道
CAD图库
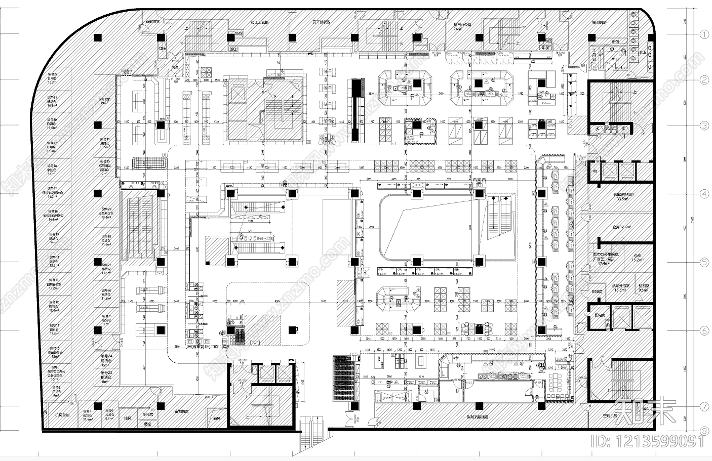
其他类型图纸 超市装修平面图 天花布置图 超市铺地布置图 施工图
1/
9
Previous
Next
其他类型图纸CAD下载
ID: 1213599091
复制
上传作者
三国一路
上传时间
2026-03-18
文件大小
17.7M
设计风格:
--
CAD版本:
CAD2018
包含文件:
CAD
授权
独家
立即下载
收藏
分享
举报
相关推荐
综合
其他图纸
其他类型图纸
三视图
吊顶图
水电图