CAD频道
CAD图库
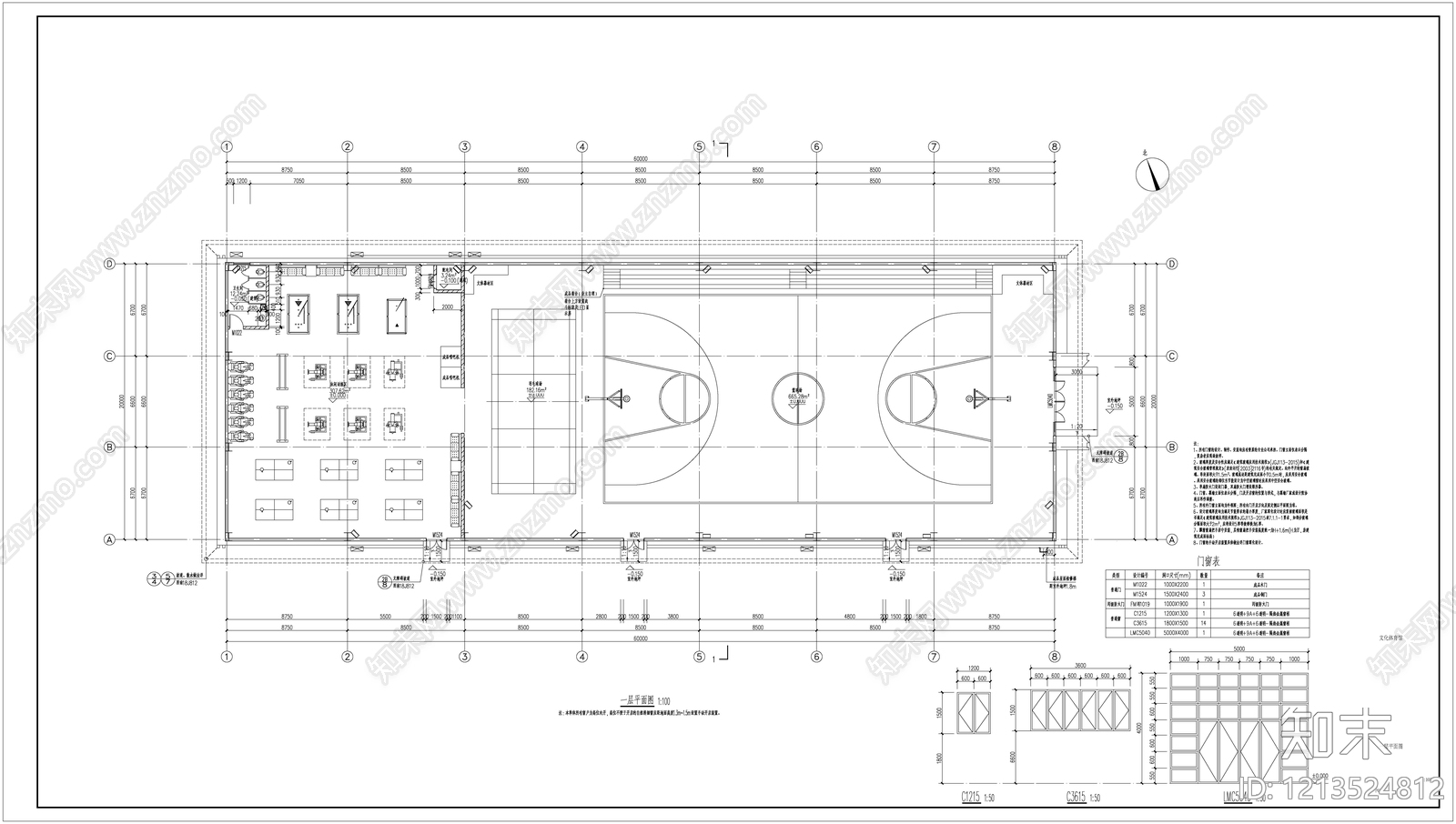
现代体育馆建筑 现代 体育馆 平立剖 施工图
1/
6
Previous
Next
现代体育馆建筑CAD下载
ID: 1213524812
复制
上传作者
Mango
上传时间
2026-03-17
文件大小
1.13M
设计风格:
--
CAD版本:
CAD2004
包含文件:
CAD
授权
独家
立即下载
收藏
分享
举报
相关推荐
综合
文化建筑
体育馆建筑
图书馆建筑
博物馆建筑
美术馆建筑
游泳馆建筑
教堂
其他文化建筑