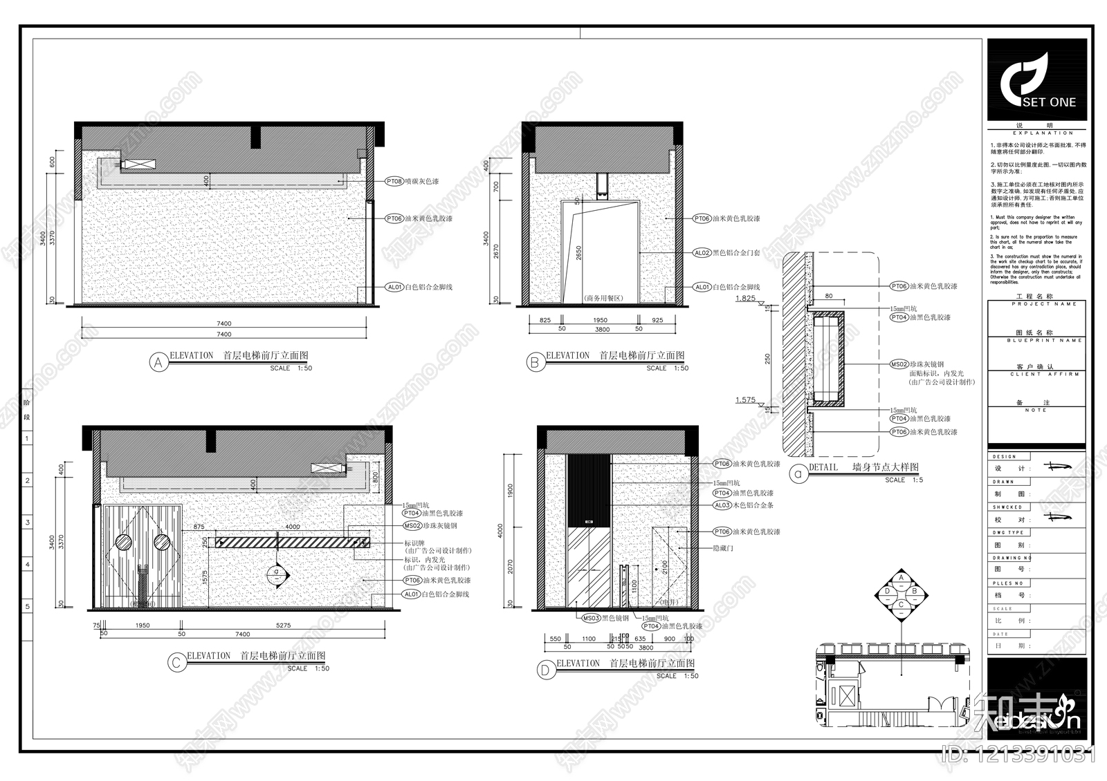
现代电梯厅施工图下载【ID:1213391031】

现代电梯厅CAD下载

ID: 1213391031
复制
上传作者
0307537603075376

上传时间2026-03-14

文件大小4.24M

设计风格:--

CAD版本:CAD2004

包含文件:CAD

授权独家

立即下载
收藏
分享
举报
相关推荐
综合
公共空间
电梯厅
其他公共空间
公共卫生间
宿舍
门头
服务中心
活动中心
会展
母婴室