1/3


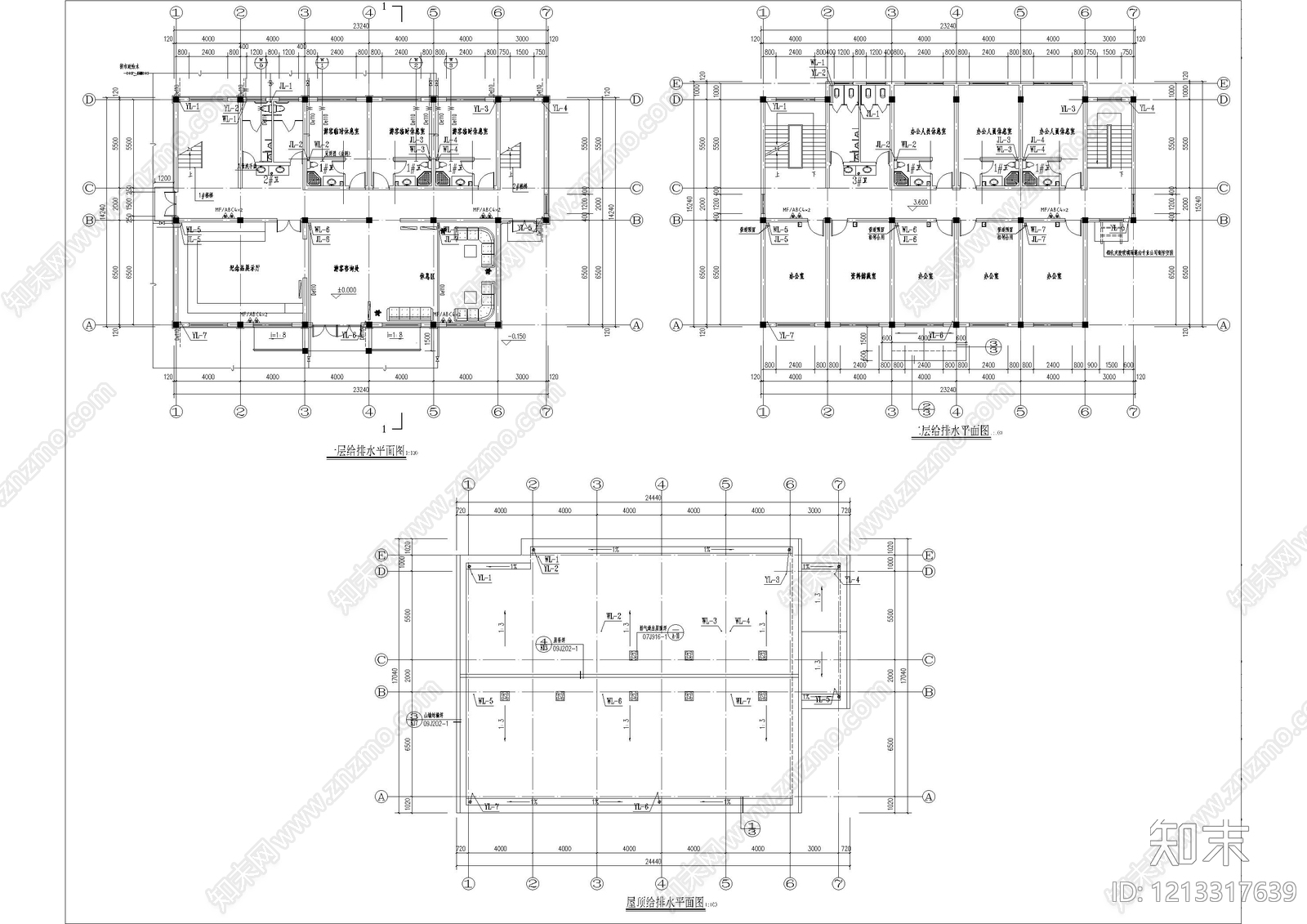
给水系统CAD下载
ID: 1213317639
复制
上传作者
小趴菜园
小趴菜园上传时间2026-03-13
文件大小1.37M
设计风格:--
CAD版本:CAD2004
包含文件:CAD
授权独家
立即下载
收藏
分享
举报
相关推荐
综合
建筑给排水
给水系统
排水系统
热水系统
中水系统
雨水系统
消防给水系统
污水提升系统
给排水机房
水箱系统


小趴菜园上传时间2026-03-13
文件大小1.37M
设计风格:--
CAD版本:CAD2004
包含文件:CAD
授权独家