CAD频道
CAD图库
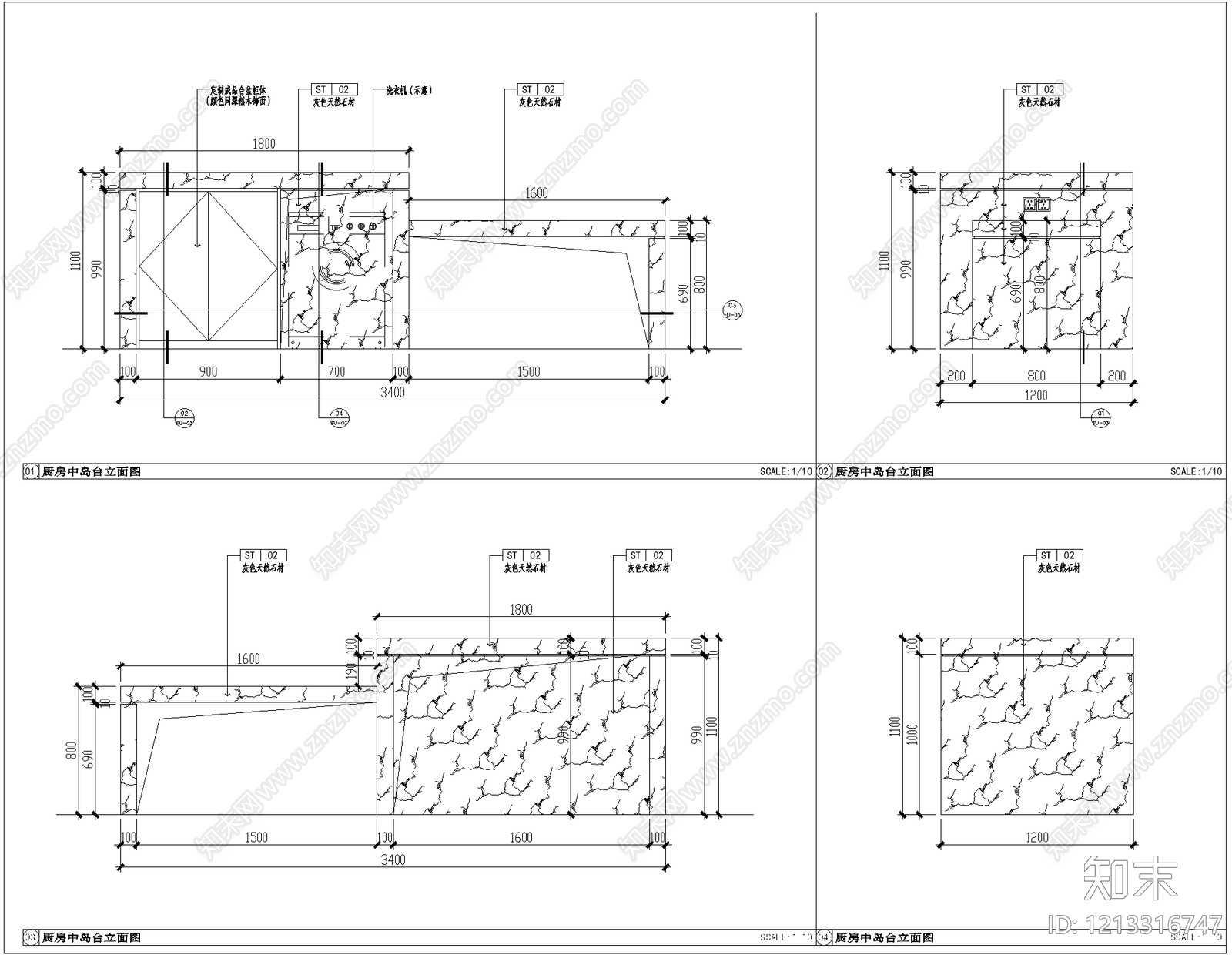
吧台节点 开放厨房中岛台 吧台 厨房岛台 开放式厨房家具 施工图
1/
3
Previous
Next
吧台节点CAD下载
ID: 1213316747
复制
上传作者
黑色幽默(互粉)
上传时间
2026-03-13
文件大小
0.34M
设计风格:
--
CAD版本:
CAD2004
包含文件:
CAD
授权
独家
立即下载
收藏
分享
举报
相关推荐
综合
家具节点详图
吧台节点
壁炉节点
柜体节点
卡座节点
前台节点
综合家具节点