CAD频道
CAD图库
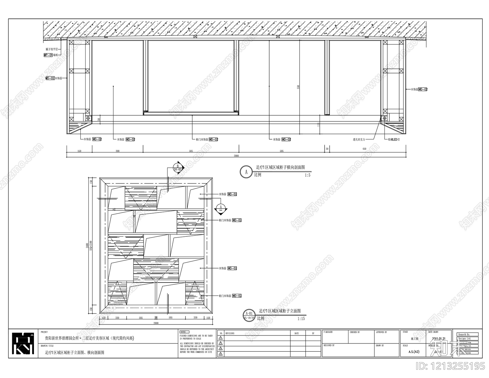
现代柜子 柜子立面图 大样 施工图
1/
4
Previous
Next
现代柜子CAD下载
ID: 1213255195
复制
上传作者
03075376
上传时间
2026-03-12
文件大小
3.35M
设计风格:
--
CAD版本:
CAD2004
包含文件:
CAD
授权
独家
立即下载
收藏
分享
举报
相关推荐
综合
家具图库
柜子
沙发
桌椅
床
吧台
榻榻米
椅子
桌子
遮阳伞