1/7


现代其他建筑CAD下载
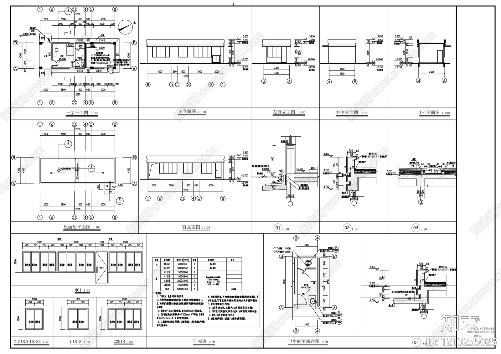
ID: 1213255025
复制
上传作者
常威打来福
常威打来福上传时间2026-03-12
文件大小1.64M
设计风格:--
CAD版本:天正建筑 2021
包含文件:CAD
授权独家
立即下载
收藏
分享
举报
相关推荐
综合
建筑
其他建筑
居住建筑
办公工业建筑
商业建筑
酒店民宿建筑
交通建筑
规划设计
古建
教育建筑


常威打来福上传时间2026-03-12
文件大小1.64M
设计风格:--
CAD版本:天正建筑 2021
包含文件:CAD
授权独家