CAD频道
CAD图库
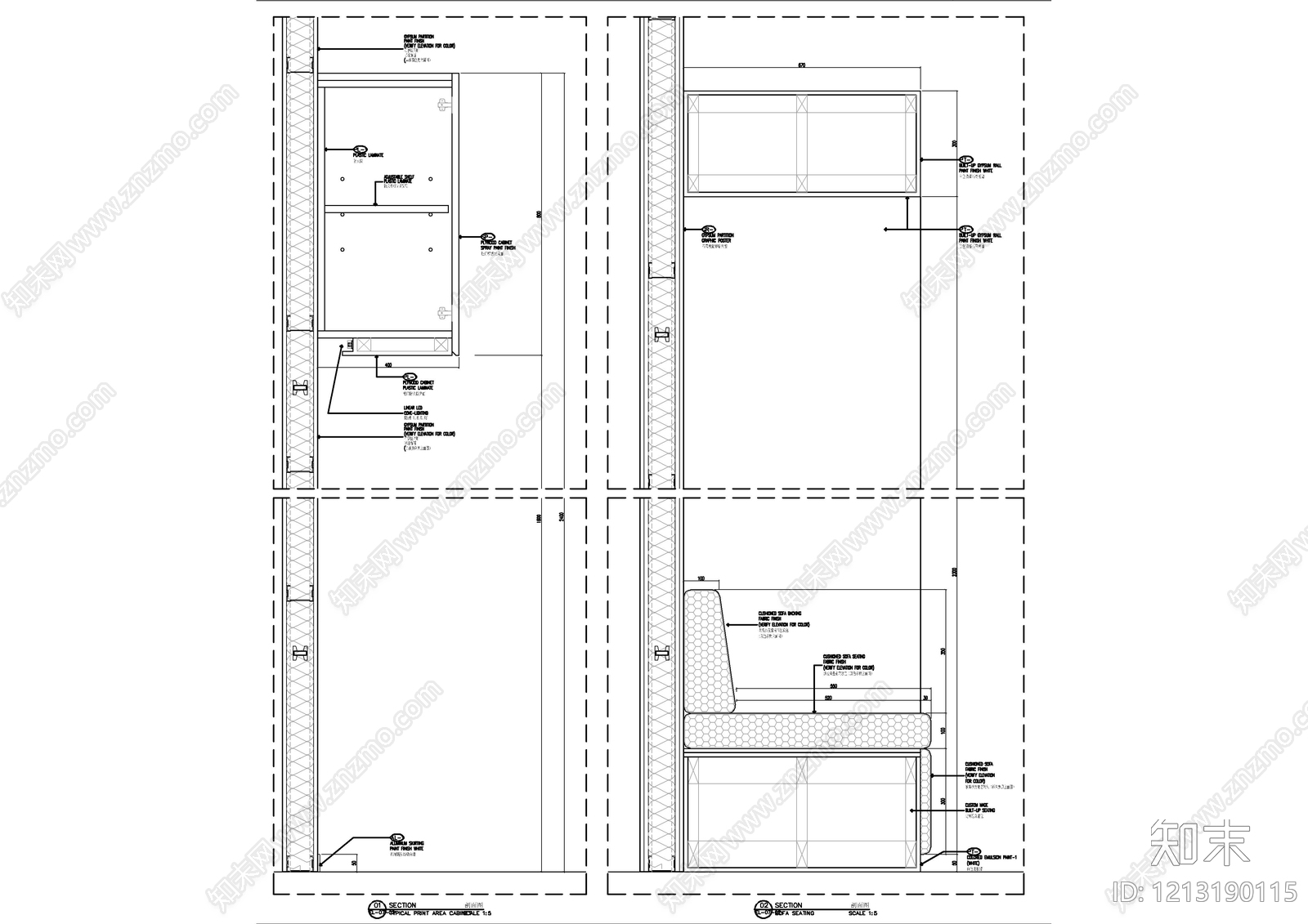
墙面节点 软包卡座节点大样 施工图
1/
3
Previous
Next
墙面节点CAD下载
ID: 1213190115
复制
上传作者
xin图
上传时间
2026-03-11
文件大小
1.5M
设计风格:
--
CAD版本:
CAD2004
包含文件:
CAD
授权
独家
立即下载
收藏
分享
举报
相关推荐
综合
墙面节点
背景墙节点
轻钢龙骨隔墙
壁龛节点
隔音墙节点