CAD频道
CAD图库
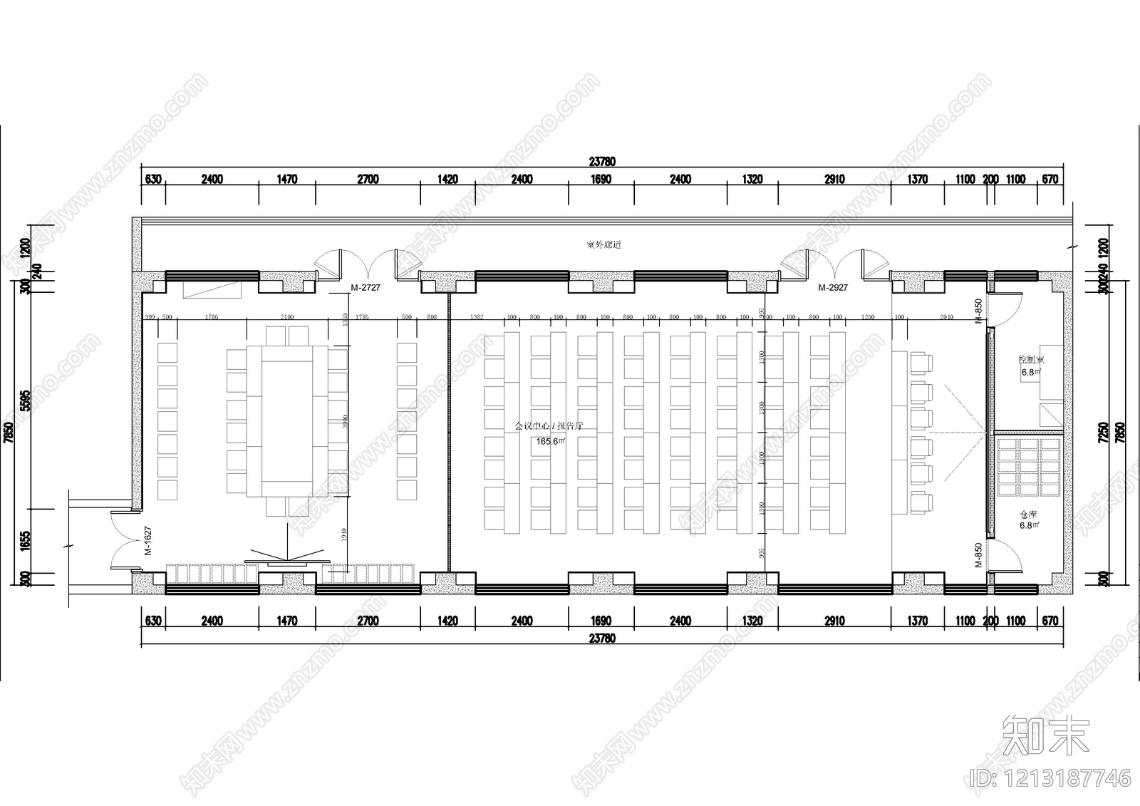
现代会议室 会议中心施 施工图
1/
5
Previous
Next
现代会议室CAD下载
ID: 1213187746
复制
上传作者
小趴菜园
上传时间
2026-03-11
文件大小
6.72M
设计风格:
--
CAD版本:
CAD2004
包含文件:
CAD
授权
独家
立即下载
收藏
分享
举报
相关推荐
综合
办公空间
会议室
开放办公室
休息室
整体办公空间
独立办公室
直播间
茶水间
接待室
工作室