CAD频道
CAD图库
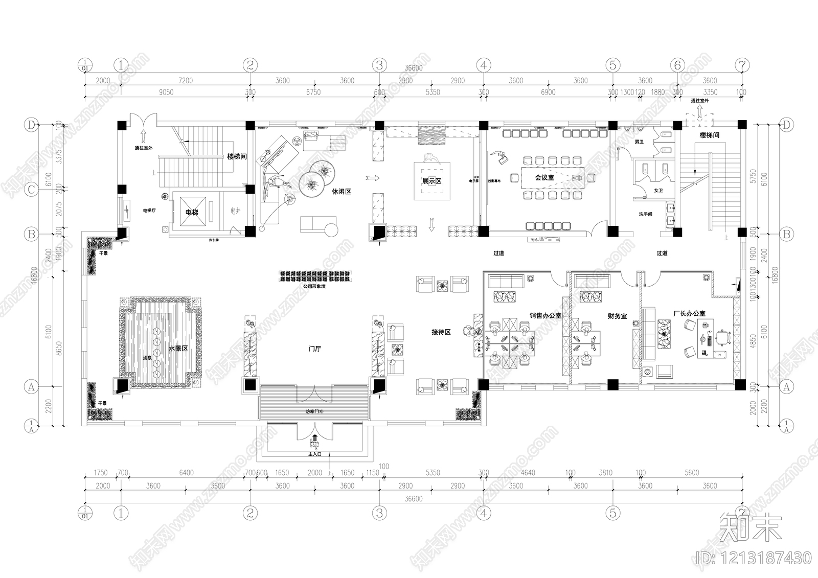
现代整体办公空间 办公空间平面图 办公楼 董事长办公室平面 公共空间 效...
1/
5
Previous
Next
现代整体办公空间CAD下载
ID: 1213187430
复制
上传作者
黄桃罐头
上传时间
2026-03-11
文件大小
0.71M
设计风格:
--
CAD版本:
CAD2014
包含文件:
CAD
授权
独家
立即下载
收藏
分享
举报
相关推荐
综合
办公空间
整体办公空间
开放办公室
会议室
休息室
独立办公室
直播间
茶水间
接待室
工作室