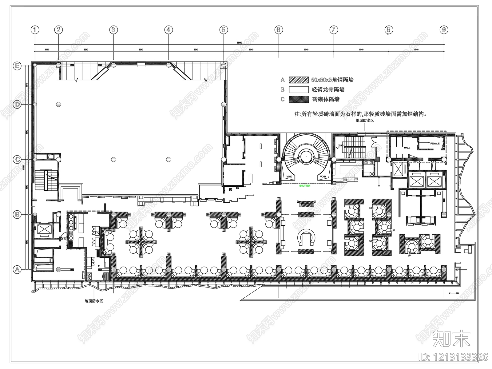
轻质隔墙施工图下载【ID:1213133326】

轻质隔墙CAD下载

ID: 1213133326
复制
上传作者
0307537603075376

上传时间2026-03-10

文件大小4.47M

设计风格:--

CAD版本:CAD2004

包含文件:CAD

授权独家

立即下载
收藏
分享
举报
相关推荐
综合
墙体构件
轻质隔墙
外墙构造
内墙构造
幕墙系统
砌体墙
剪力墙
挡土墙
夹芯墙