
楼梯栏杆扶手CAD下载
ID: 1213050572
复制
上传作者
03075376
03075376上传时间2026-03-08
文件大小1.18M
设计风格:--
CAD版本:CAD2004
包含文件:CAD
授权独家
立即下载
收藏
分享
举报
相关推荐
综合
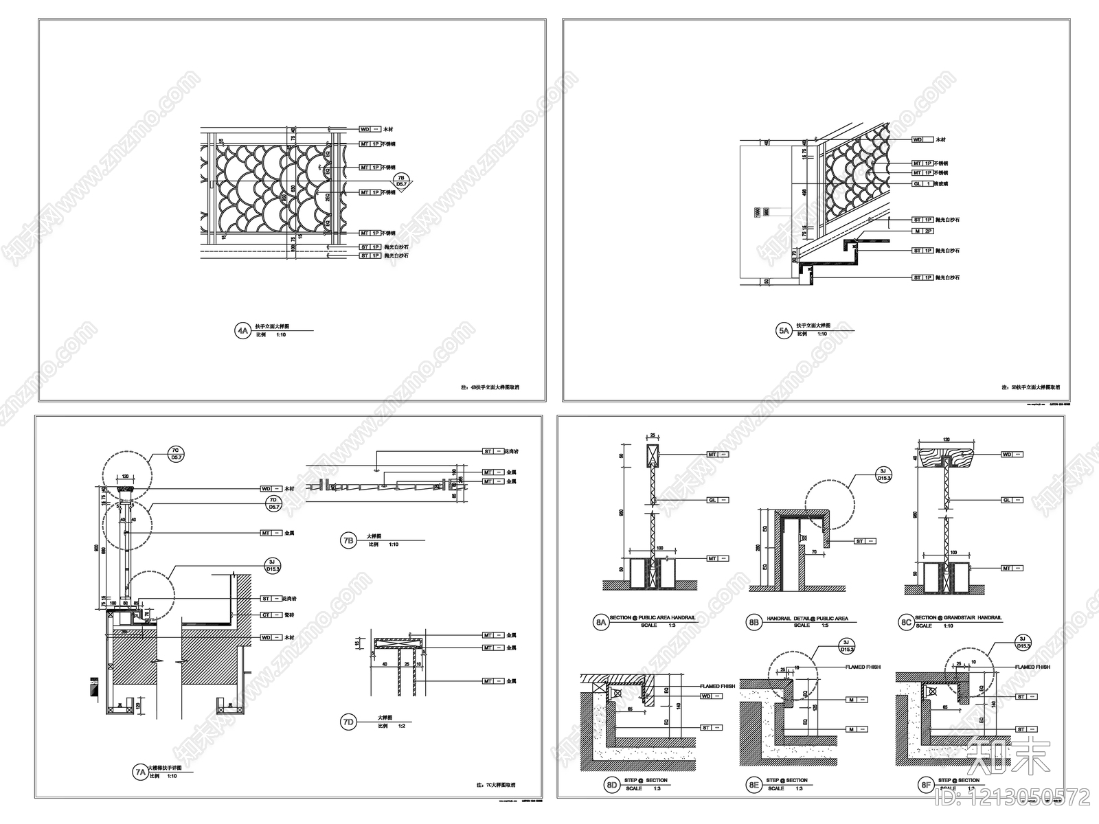
楼梯构件
楼梯栏杆扶手
疏散楼梯
室内楼梯
室外楼梯
预制楼梯
钢结构楼梯
旋转楼梯
悬挑楼梯
异形楼梯

03075376上传时间2026-03-08
文件大小1.18M
设计风格:--
CAD版本:CAD2004
包含文件:CAD
授权独家