1/2


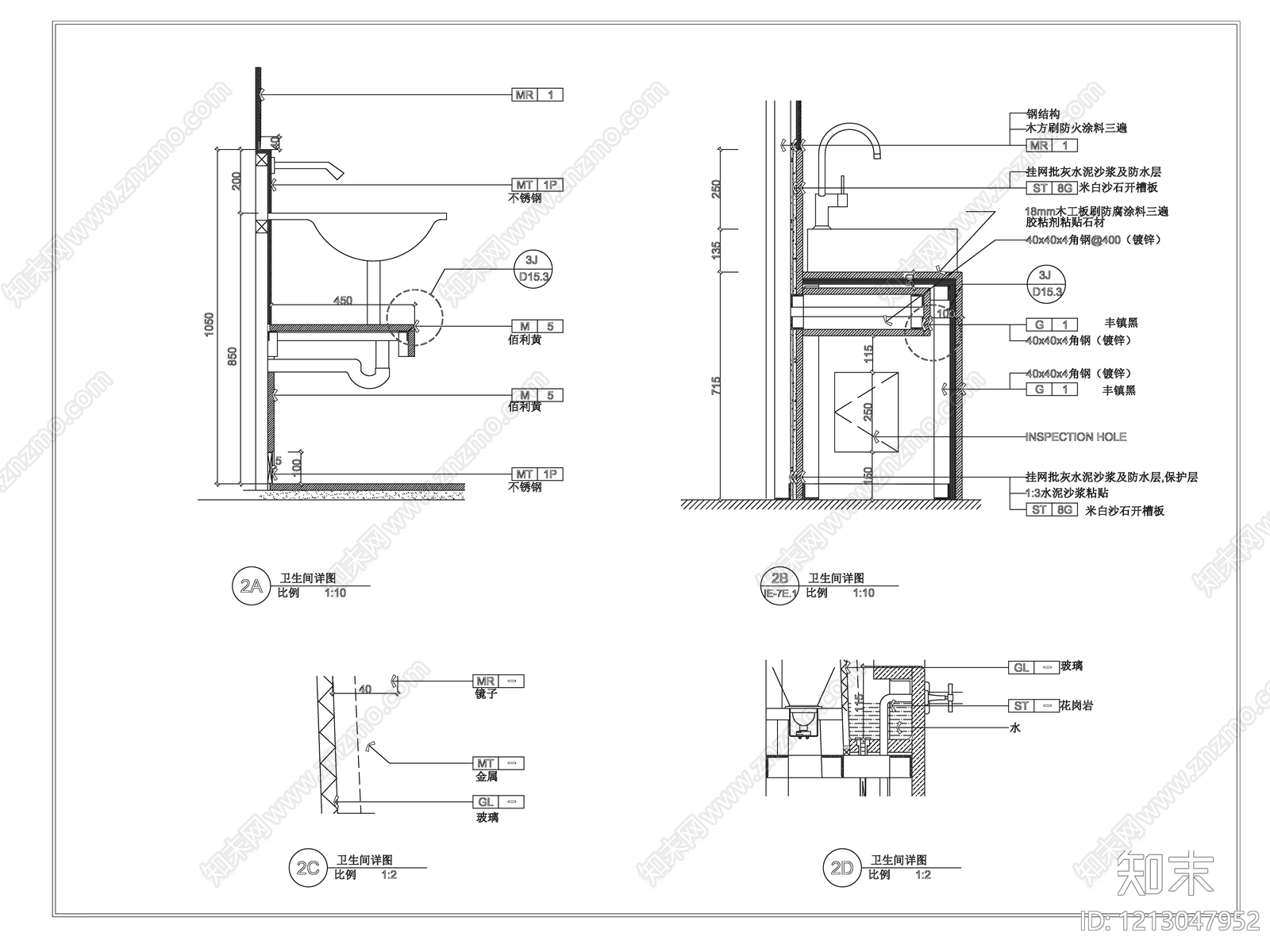
卫生间综合节点CAD下载
ID: 1213047952
复制
上传作者
03075376
03075376上传时间2026-03-08
文件大小1.66M
设计风格:--
CAD版本:CAD2004
包含文件:CAD
授权独家
立即下载
收藏
分享
举报
相关推荐
综合
卫浴节点
卫生间综合节点
地漏节点
镜子节点
淋浴房节点
拖把池节点
卫生间防水
卫生间排水
洗手台节点
卫生间隔断


03075376上传时间2026-03-08
文件大小1.66M
设计风格:--
CAD版本:CAD2004
包含文件:CAD
授权独家