CAD频道
CAD图库
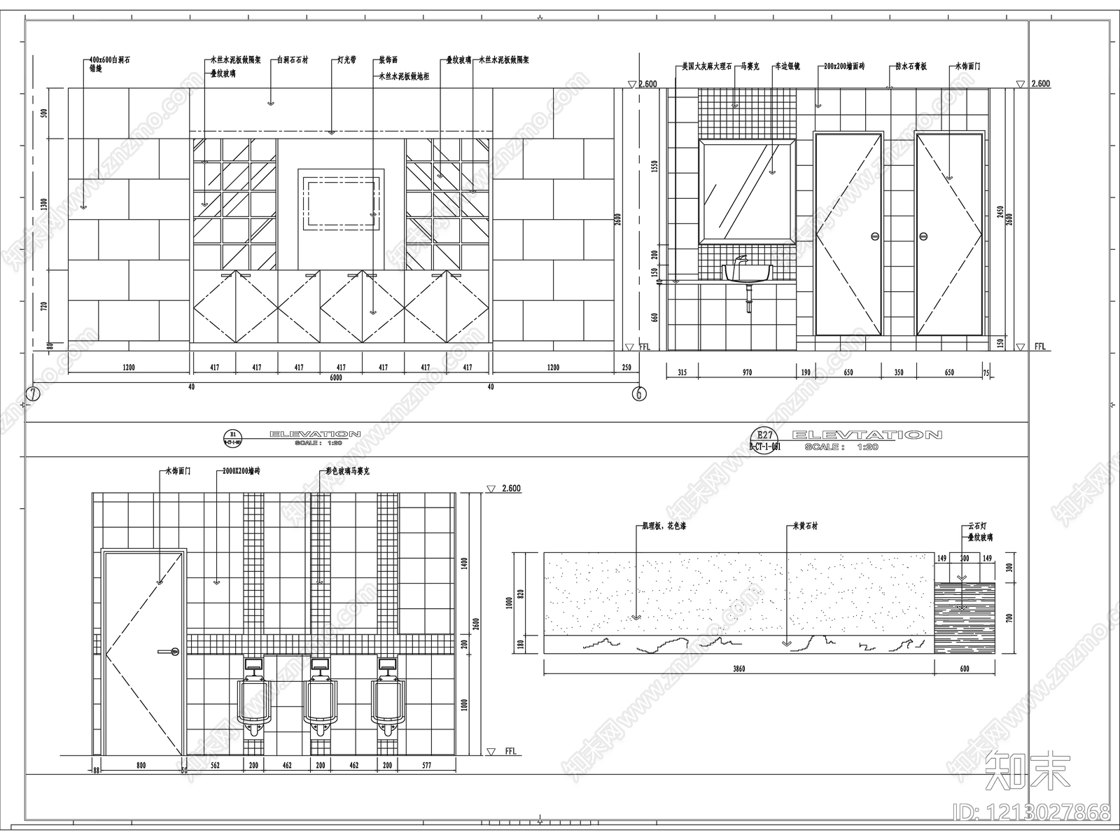
工装综合图库 咖啡厅 施工图
1/
2
Previous
Next
工装综合图库CAD下载
ID: 1213027868
复制
上传作者
03075376
上传时间
2026-03-07
文件大小
3.46M
设计风格:
--
CAD版本:
CAD2004
包含文件:
CAD
授权
独家
立即下载
收藏
分享
举报
相关推荐
综合
工装图库
工装综合图库
办公家具图库
酒店家具
餐厅家具
展览展厅家具