CAD频道
CAD图库
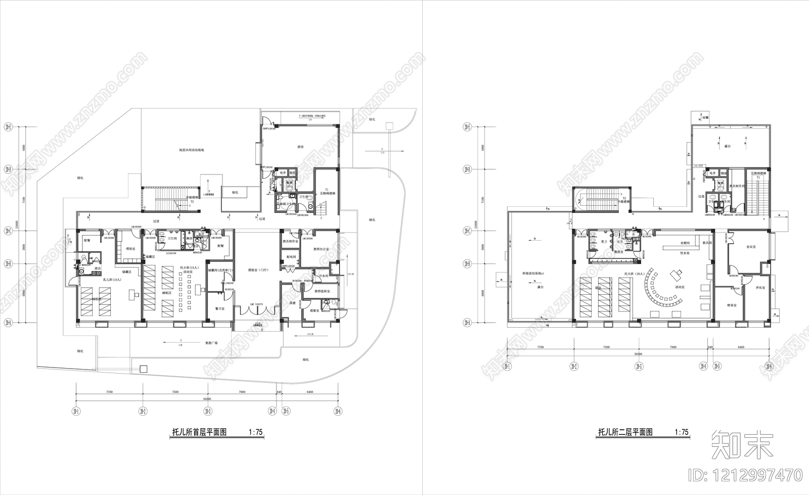
现代幼儿园 托儿所平面设计 托儿所平面图 托儿所布局图 施工图
现代幼儿园CAD下载
ID: 1212997470
复制
上传作者
SPRING
上传时间
2026-03-06
文件大小
1.76M
设计风格:
--
CAD版本:
CAD2004
包含文件:
CAD
授权
独家
立即下载
收藏
分享
举报
相关推荐
综合
教育空间
幼儿园
学校
培训中心
其他教育空间
实验室
教室
画室
舞蹈室