CAD频道
CAD图库
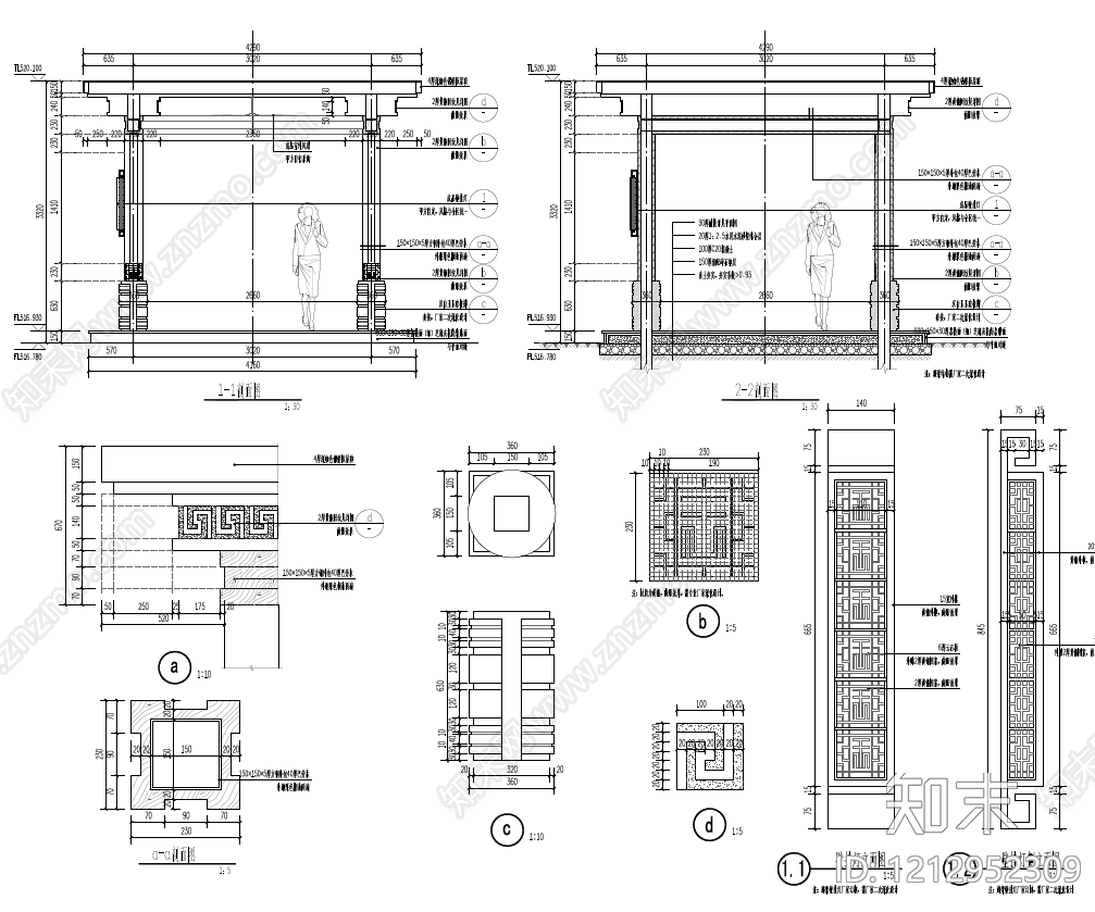
新中式亭子 景观亭 施工图
1/
2
Previous
Next
新中式亭子CAD下载
ID: 1212952309
复制
上传作者
卡皮巴拉
上传时间
2026-03-05
文件大小
0.58M
设计风格:
--
CAD版本:
T20 天正建筑 V5.0
包含文件:
CAD
授权
独家
立即下载
收藏
分享
举报
相关推荐
综合
景观小品
亭子
廊架
景墙
综合景观小品
雨棚
围墙
挡土墙
入口
景观坐凳