CAD频道
CAD图库
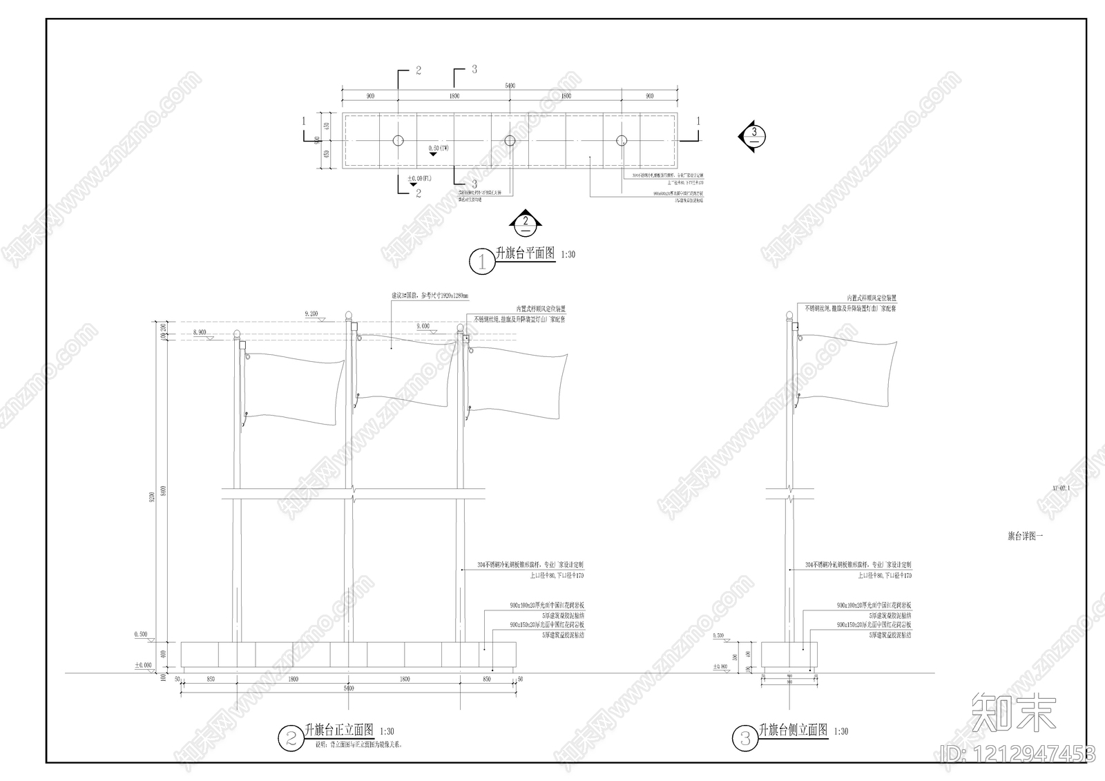
现代中式升旗台 旗杆节点 旗台 施工图
1/
2
Previous
Next
现代中式升旗台CAD下载
ID: 1212947453
复制
上传作者
干饭王
上传时间
2026-03-05
文件大小
8.21M
设计风格:
--
CAD版本:
CAD2014
包含文件:
CAD
授权
独家
立即下载
收藏
分享
举报
相关推荐
综合
景观小品
升旗台
亭子
廊架
景墙
综合景观小品
雨棚
围墙
挡土墙
入口