CAD频道
CAD图库
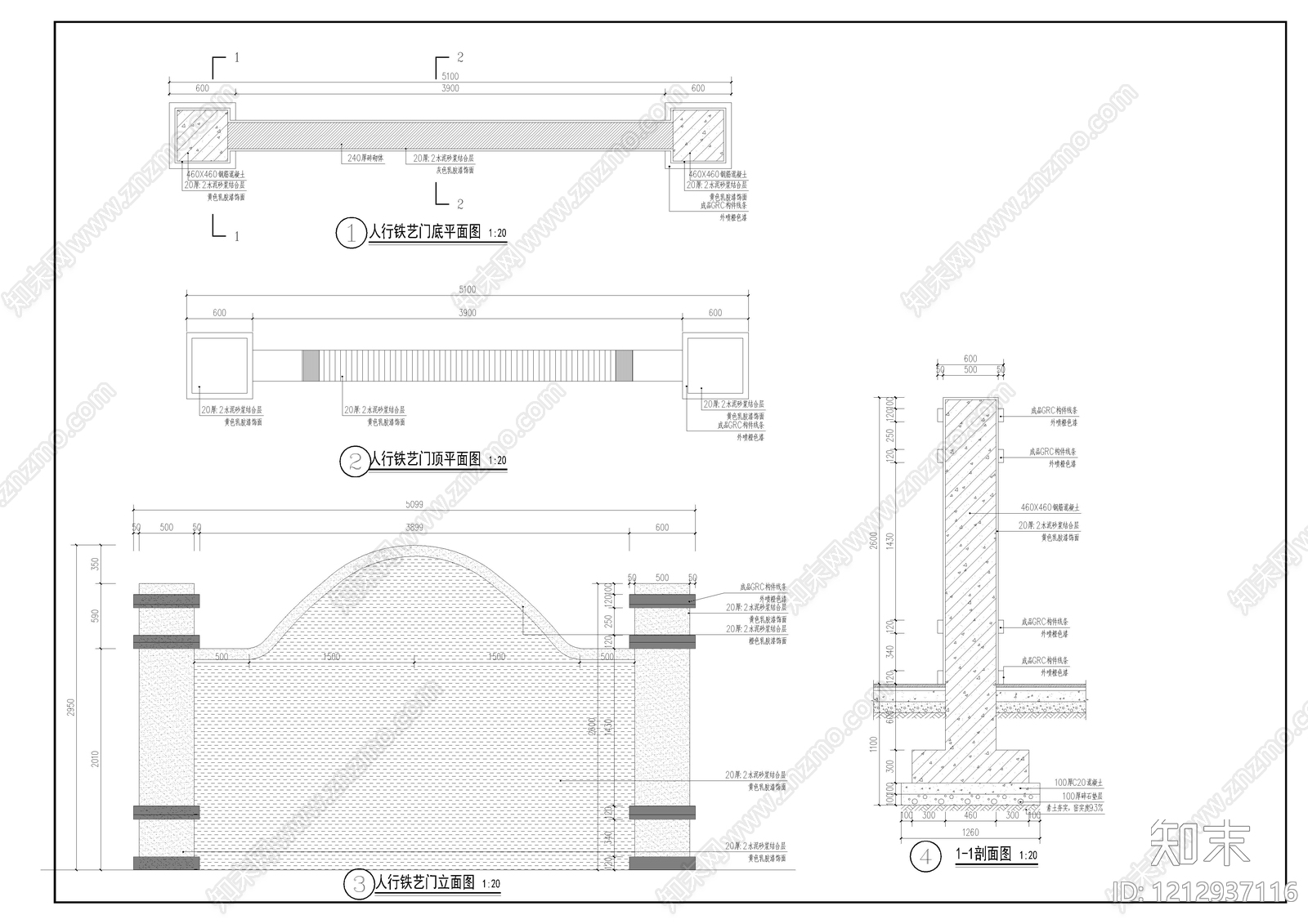
中式现代景墙 庭院景墙 幼儿园景墙 施工图
中式现代景墙CAD下载
ID: 1212937116
复制
上传作者
干饭王
上传时间
2026-03-05
文件大小
4.2M
设计风格:
--
CAD版本:
CAD2014
包含文件:
CAD
授权
独家
立即下载
收藏
分享
举报
相关推荐
综合
景观小品
景墙
亭子
廊架
综合景观小品
雨棚
围墙
挡土墙
入口
景观坐凳