CAD频道
CAD图库
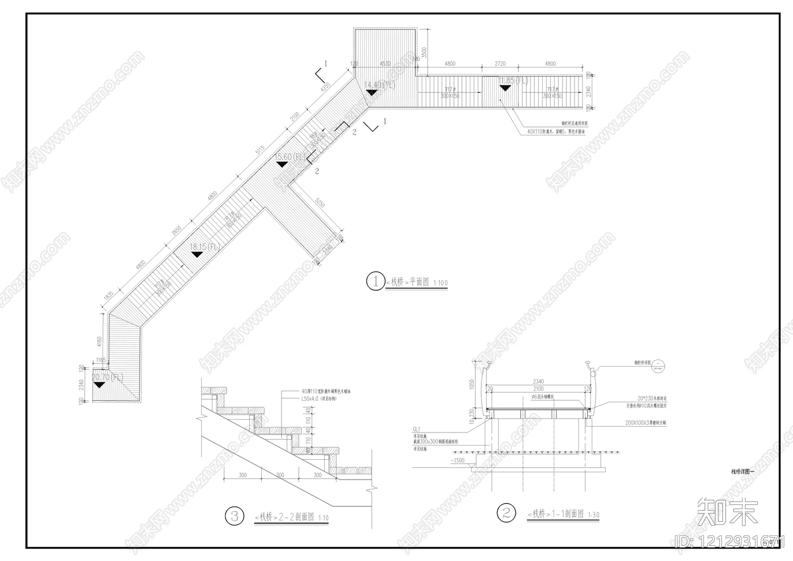
现代景观桥 栈桥 路面栈桥 施工图
1/
3
Previous
Next
现代景观桥CAD下载
ID: 1212931671
复制
上传作者
干饭王
上传时间
2026-03-05
文件大小
3.09M
设计风格:
--
CAD版本:
CAD2014
包含文件:
CAD
授权
独家
立即下载
收藏
分享
举报
相关推荐
综合
景观小品
景观桥
亭子
廊架
景墙
综合景观小品
雨棚
围墙
挡土墙
入口